Vuokrataan toimistotilat - Helsinki
Työpajankatu 13, Kalasatama, 00580 Helsinki #10840759
Vuokrattavana upea kombitoimisto joka on joustavasti muunneltavissa huonekonttoriksi tai avototoimistoksi. Keskeinen sijainti Kalasataman metroaseman ja kaupunkikeskus REDIn vierestä. Tilat muokataan täysin vuokralaisen omat tarpeet ja toiveet huomioiden. Huom! Kuvat ovat havainnekuvia kiinteistön yleisestä tasosta. Ota yhteyttä ja sovi esittely, vuokrauspalvelumme on tilanhakijoille maksuton.
Osoite
Työpajankatu 13, 00580 Helsinki
Tilatyyppi
Toimistotilaa
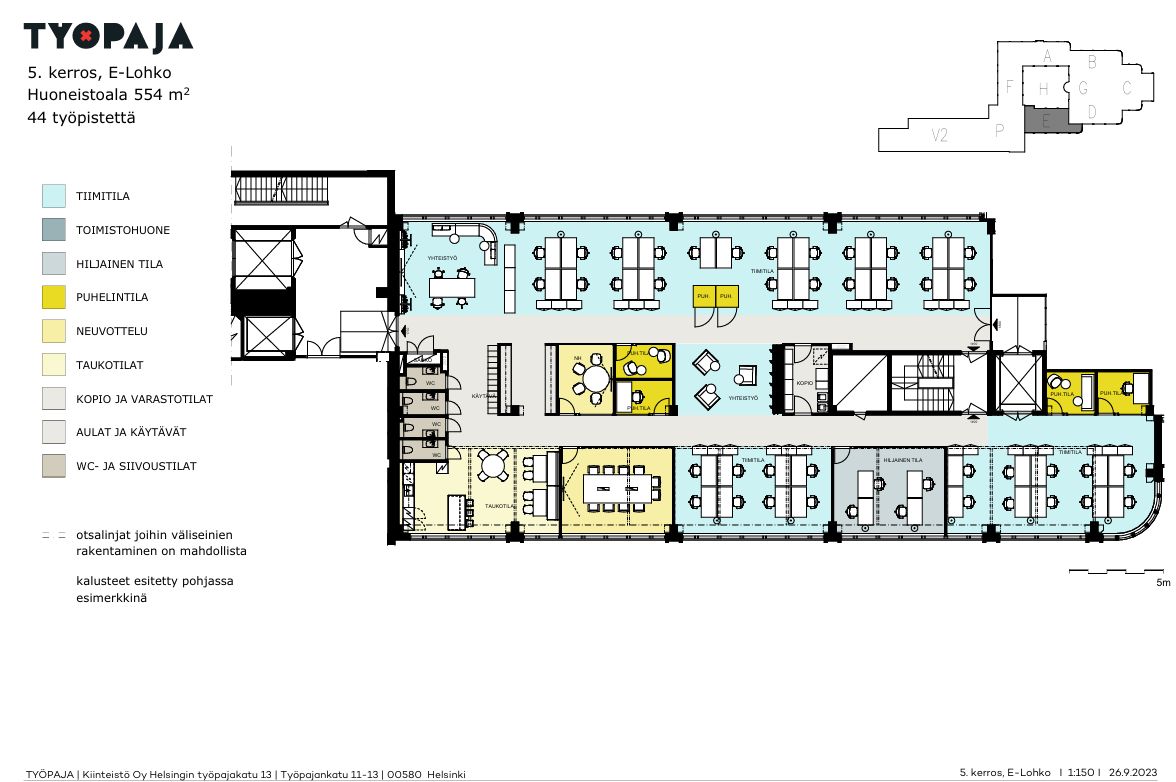
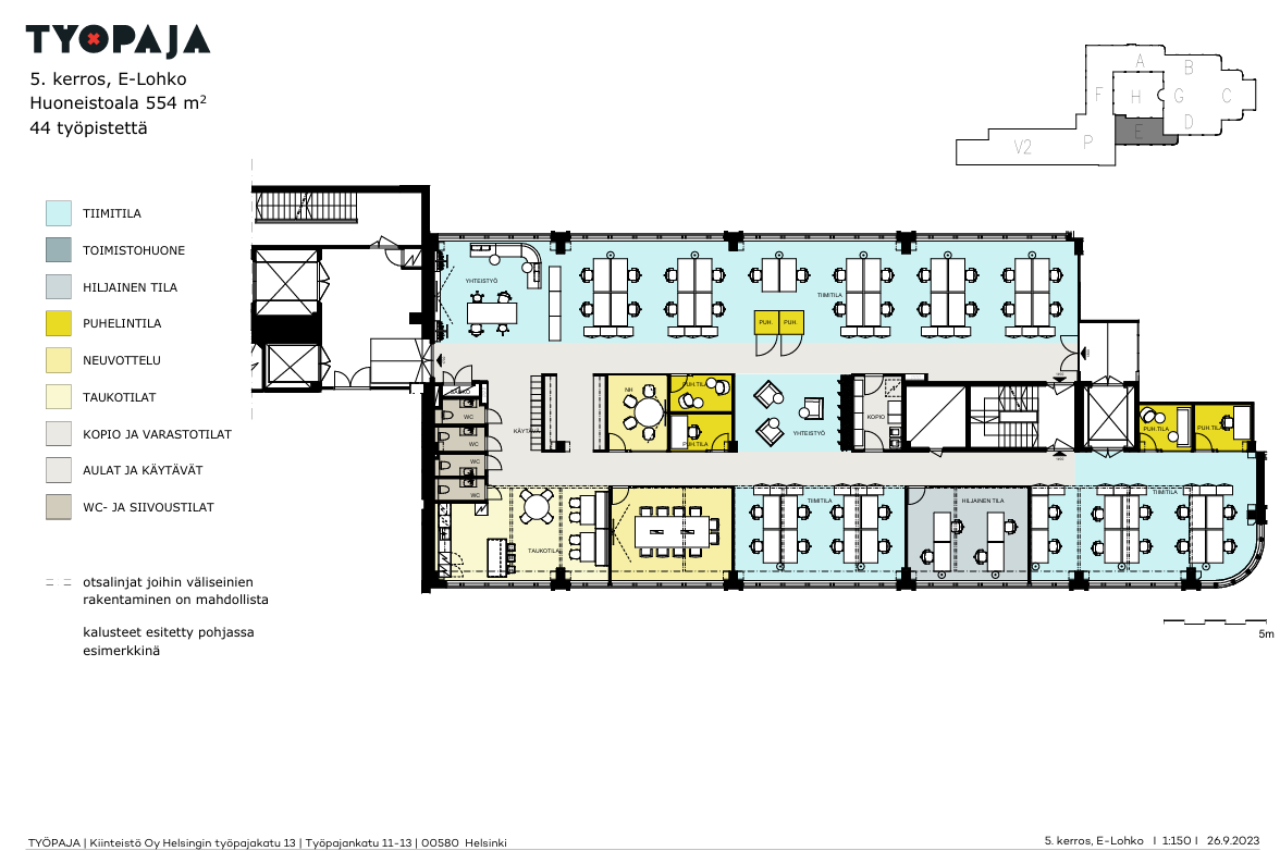
554 m2
Pohjapiirros
Kiinteistö
Kiinteistö on täysin peruskorjattu vastaamaan tulevaisuuden toimistotilavaatimuksia.
Sijainti
Kalasataman metroaseman vieressä.
Ympäristö
Merellinen uusi kaupunkikeskus Kalasatama.
Pysäköinti
Oma parkkihalli sekä Redin pysäköintitilat.
Palvelut
- aulapalvelu
- lounasravintola
- kahvila
- neuvottelukeskus
- auditorio
- kuntosali
- edustustilat
- saunaosasto
- lounasravintola
- kahvila
- neuvottelukeskus
- auditorio
- kuntosali
- edustustilat
- saunaosasto
Kulkuyhteydet
Kalasataman metroaseman vieressä.
Muuta
Varastotilaa vuokrattavana kellarista tarpeen mukaan.
Vapautuu
Heti
Saneerausvuosi
2019
Kerros
5 / 10
Energiatehokkuusluokka
Ei lain edellyttämää energiatodistusta
Näkyvällä paikalla
Hissi
Liitetiedostot
Ota yhteyttä
Senaatin Notariaatti Oy LKV
Lämmittäjänkatu 4 A
FIN-00880 Helsinki
Tel:
Näytä puhelinnumero
+358 9 7745 100
Pyydä lisätietoa
