Vuokrataan toimistotilat - Helsinki
Salomonkatu 17, Kamppi, 00100 Helsinki #10840752
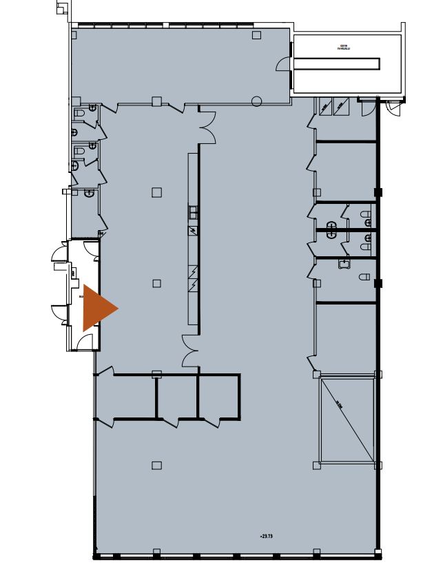
Vuokrattavana 3. kerroksen upeaa ja siistiä, jäähdytettyä toimistotilaa.
Osoite
Salomonkatu 17, 00100 Helsinki
Tilatyyppi
Toimistotilaa
534 m2
Kiinteistö
Vuokrattavana 3. kerroksen upeaa ja siistiä, jäähdytettyä toimistotilaa. Toimistossa on avotila ja muutama erillishuone.
Sijainti
Kamppi, Helsinki
Pysäköinti
Autohallit ja alueen pysäköintilaitokset.
Palvelut
Kampin keskuksen palvelut.
Kulkuyhteydet
-Metroasema 100 m
-Raitiovaunupysäkki 200 m
-Bussipysäkki alle 100 m
-Juna-asema 900 m
-Raitiovaunupysäkki 200 m
-Bussipysäkki alle 100 m
-Juna-asema 900 m
Vapautuu
Heti
Kerros
3
Energiatehokkuusluokka
Ei lain edellyttämää energiatodistusta
Näkyvällä paikalla
Hissi
Ota yhteyttä
REALIUM OY LKV
Tammasaarenkatu 1, 00180 Helsinki
Vaihde:
Näytä puhelinnumero
010 326 346
Tuomo Mäkelä
tuomo.makela@realium.fi
p.
Näytä puhelinnumero
044 050 1158
Joel Keto
joel.keto@realium.fi
p.
Näytä puhelinnumero
045 317 0330
KAIKKI TILAVAIHTOEHDOT KERRALLA!
SOITA - MEILAA JA TILAA NÄYTTÖ!
Ilmainen palvelu tilanhakijoille.
Kartoitamme parhaat tilavaihtoehdot.
Kaikki kohteet eivät ole netissä.
Pyydä lisätietoa
