Vuokrataan toimistotilat, liiketilat - Helsinki
Kasarmikatu 23, Kaartinkaupunki, 00130 Helsinki #10840733
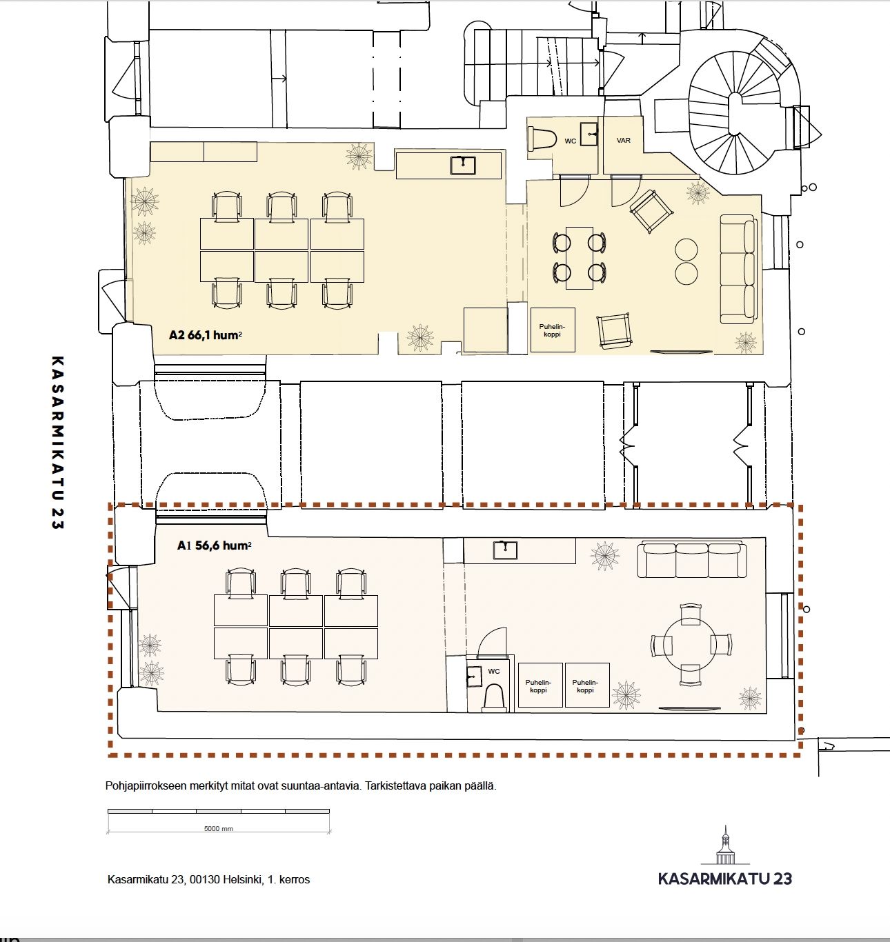
Muunneltava ja valoisa 56,6 m² liiketila / toimisto isoilla ikkunoilla Esplanadin kupeessa. Näkyvä paikka Rikhardinkadun ja Kasarmikadun risteyksessä.
Sisäpihalla sijaitsee ihastuttava ravintola Gillet ja Esplanadi sekä Kauppatori muiden suosittujen turistikohteiden lisäksi ovat korttelin tai kahden päässä.
Jugend-rakennus jonka on suunnitellut von Essen, Kallio & Ikäläinen rakennettiin vuonna 1908 ja sitä laajennettiin vuonna 1920.
Ainutlaatuinen julkisivu ja torni erottuvat alueella.
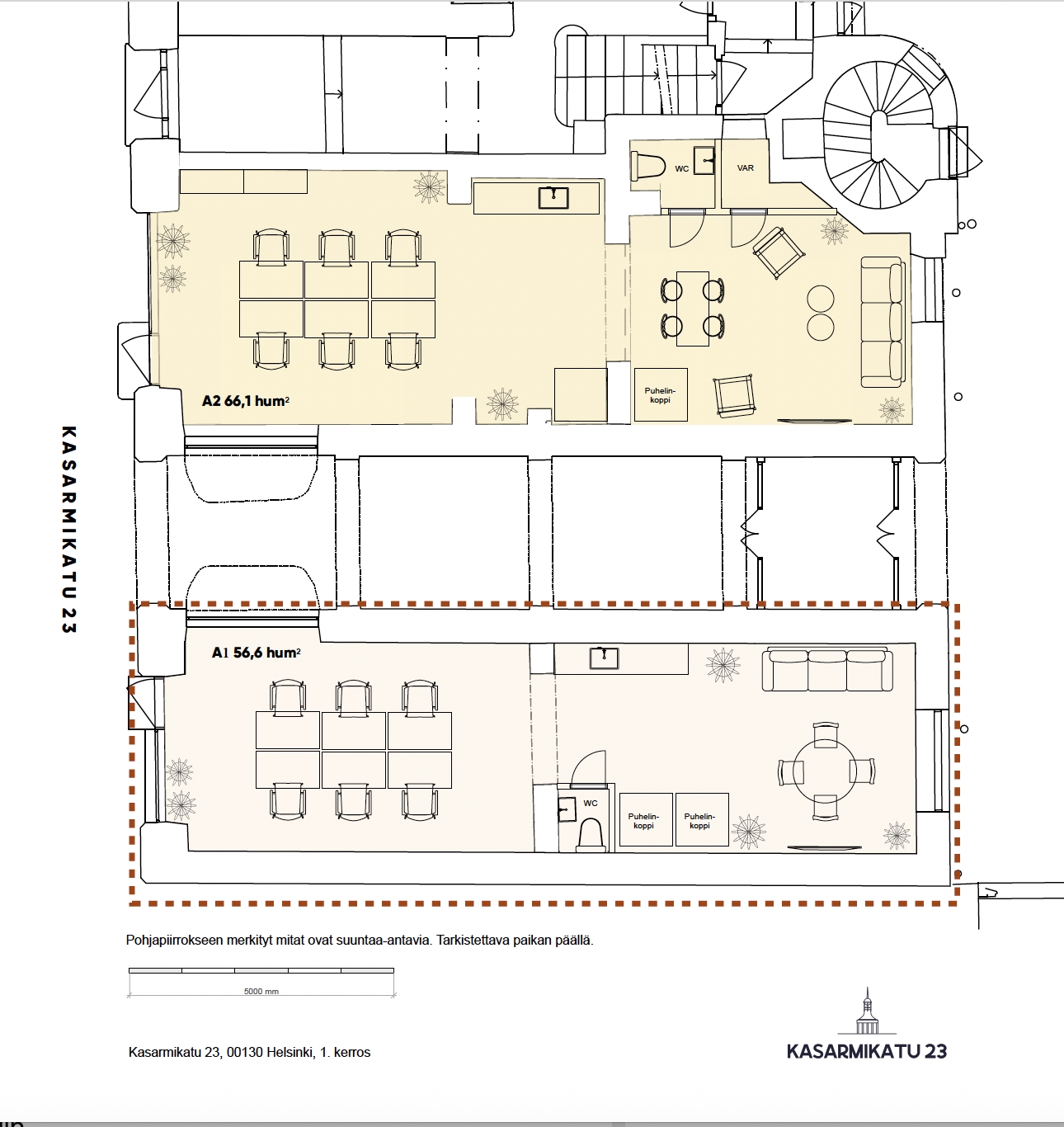
Viisi kerrosta tarjoaa moderneja ja edustavia, käyttötarkoitukseensa sopivia toimistotiloja.
Katutasossa
Hissi
ScanReal Oy LKV
Opus Business Park
Hitsaajankatu 24
00810 Helsinki
info@scanreal.fi
Puh:
Näytä puhelinnumero
020 730 8830
Sopivat toimitilat yhdellä otolla!
Kartoitamme toimitilatarpeesi ja etsimme yrityksellesi parhaiten sopivat vapaat toimitilat. Koska vuokranantajat maksavat palvelumme, on tämä yrityksellesi veloituksetonta.
OTA YHTEYTTÄ - SOVI NÄYTTÖ!
Kaikki kohteemme eivät ole netissä, kerro tilatarpeesi niin kartoitamme vaihtoehdot.
Palvelumme on tilanhakijalle ilmainen
