Vuokrataan toimistotilat - Helsinki
Kravattitehdas, Elimäenkatu 15, Vallila, 00510 Helsinki #10840732
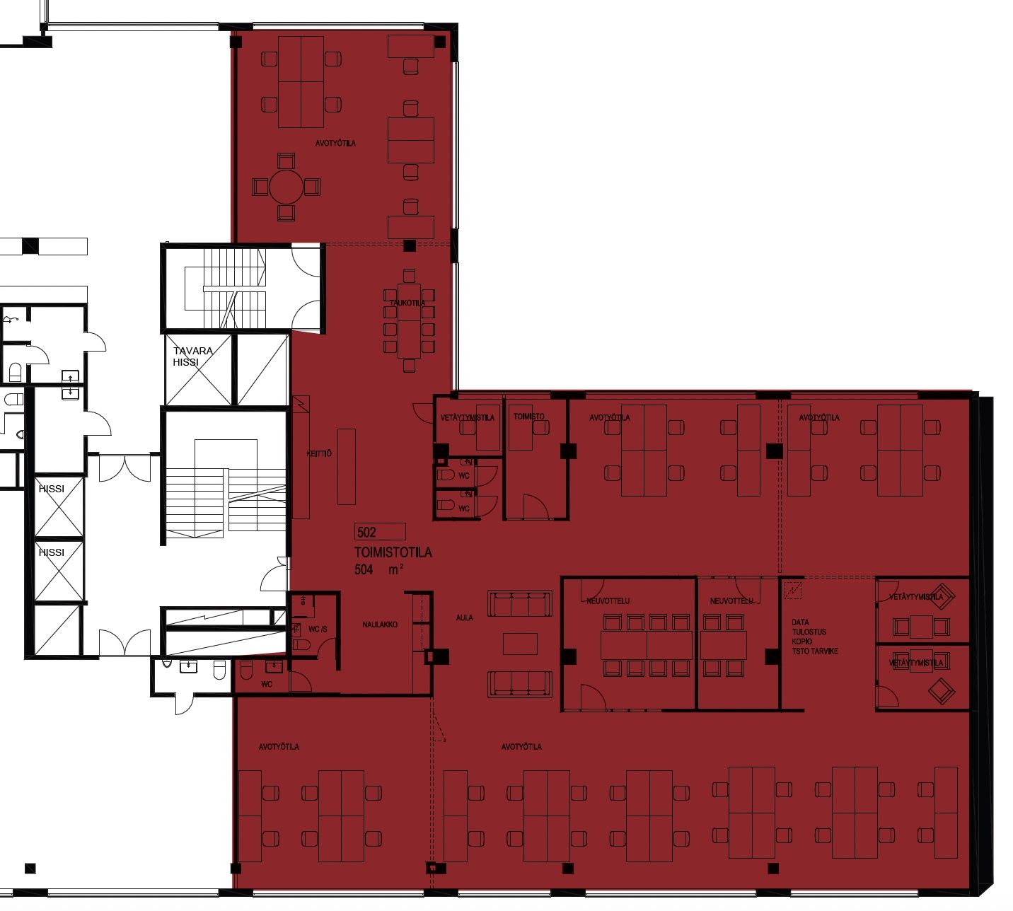
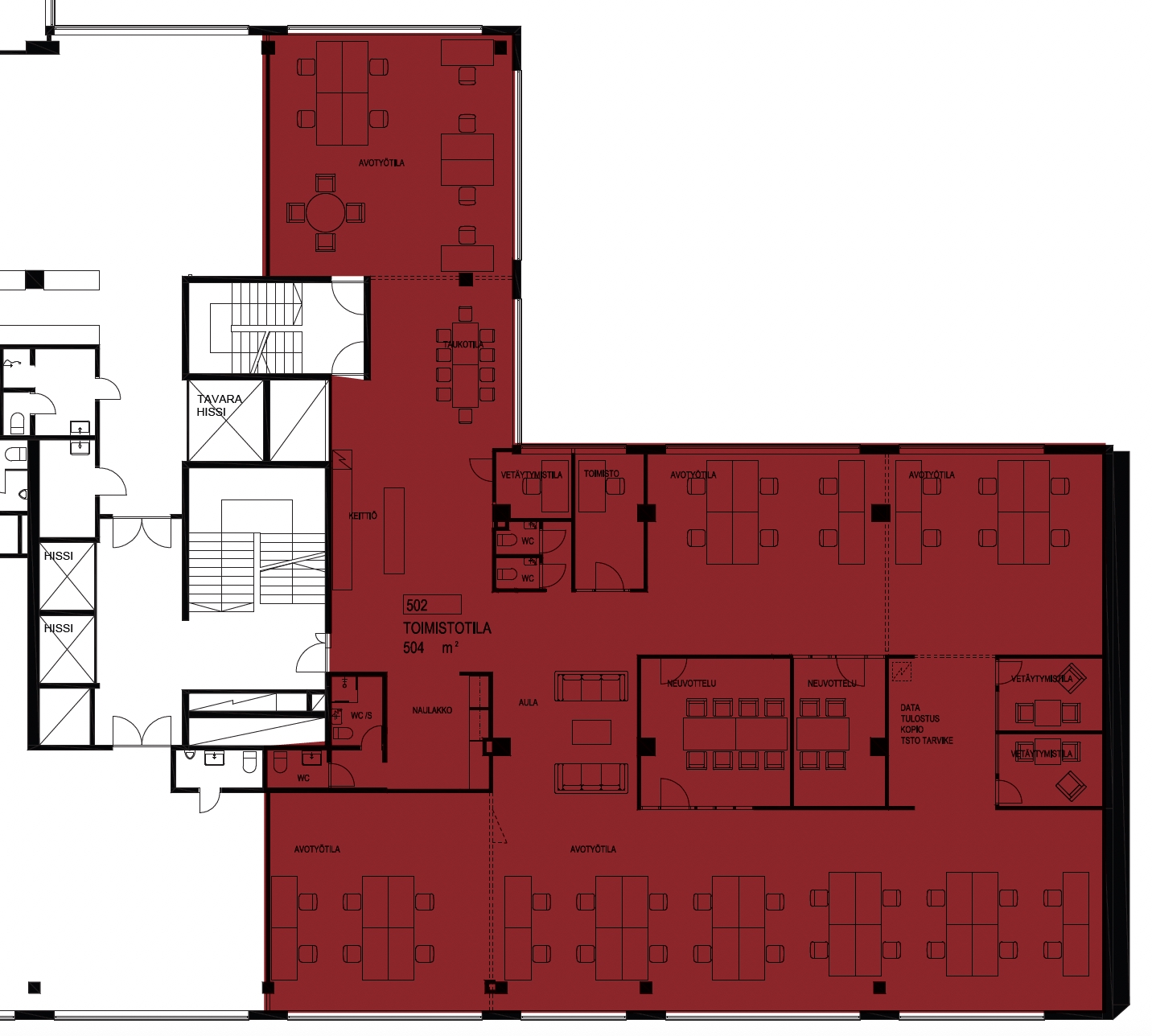
5.kerroksen 504 m² toimisto Vallilassa.
Osoite
Elimäenkatu 15, 00510 Helsinki
Tilatyyppi
Toimistotilaa
504 m2
Pohjapiirros
Kiinteistö
504 m² toimistotila sijaitsee kiinteistön 5. kerroksessa. Tila remontoidaan käyttäjän toiveiden pohjalta. Toimiston ikkunat ovat Elimäenkadun ja sisäpihan suuntaan. Tila voidaan vuokrata yhdessä viereisen 425 m² toimiston kanssa, jolloin kokonaispinta-ala on 929 m².
Ilmoituksen sisäkuvat ovat yleiskuvia kiinteistön eri tiloista.
Kravattitehdas on paikkana ainutlaatuinen – ja työpaikkana vielä ainutlaatuisempi. Lähes satavuotisen historian havina tuo tiloihin kiehtovaa omintakeisuutta ja mielikuvitusta ruokkivia nyansseja.
Kravattitehdas sijaitsee keskellä Vallilaa Elimäenkadulla, eli vain korttelin etäisyydellä pohjoisen kantakaupungin yhä vilkastuvasta valtaväylästä, Teollisuuskadusta. Yhteydet ovat mitä parhaimmat niin julkisilla kulkuvälineillä, autolla kuin fillarilla liikuttaessa.
Kravattitehtaan vanhimmat osat rakennettiin vuonna 1926. Kiinteistön tiloja modernisoidaan vanhaa historiaa kunnioittaen. Vuokralaiset pääsevät vaikuttamaan pintamateriaaleihin, pohjaratkaisuun ja valitsemaan itselleen sopivat brändivärit.
Kun auton voi hurauttaa suoraan vapaaseen ruutuun, lähtee työpäivä mukavasti käyntiin. Kravattitehtaalla se onnistuu! Kiinteistössä on paikkoja 171 autolle, naapurissa sijaitsevassa Aimo Parkin hallissa niitä riittää vielä 700 lisää.
Kuuma, kuumempi, Vallila! Kravattitehtaan kotikenttä on vahvasti erityisesti nuorten, koulutettujen ja aktiivisten kaupunkilaisten suosiossa, mikä näkyy ja kuuluu kortteleissa. Täällä riittää inspiroivaa tekemistä työpäivän päätyttyä.
Hyvän ensivaikutelman voi antaa vain kerran. Kravattitehtaan aulapalvelun työntekijät tietävät tämän ja toimivat sen mukaisesti: he edustavat laadukkaasti ja ammattitaitoisesti myös sinun yritystäsi.
Rakennuksessa on lastauslaiturit sisäpihalla ja tavarahisseillä pääsee suoraan toimitiloihin.
Ilmoituksen sisäkuvat ovat yleiskuvia kiinteistön eri tiloista.
Kravattitehdas on paikkana ainutlaatuinen – ja työpaikkana vielä ainutlaatuisempi. Lähes satavuotisen historian havina tuo tiloihin kiehtovaa omintakeisuutta ja mielikuvitusta ruokkivia nyansseja.
Kravattitehdas sijaitsee keskellä Vallilaa Elimäenkadulla, eli vain korttelin etäisyydellä pohjoisen kantakaupungin yhä vilkastuvasta valtaväylästä, Teollisuuskadusta. Yhteydet ovat mitä parhaimmat niin julkisilla kulkuvälineillä, autolla kuin fillarilla liikuttaessa.
Kravattitehtaan vanhimmat osat rakennettiin vuonna 1926. Kiinteistön tiloja modernisoidaan vanhaa historiaa kunnioittaen. Vuokralaiset pääsevät vaikuttamaan pintamateriaaleihin, pohjaratkaisuun ja valitsemaan itselleen sopivat brändivärit.
Kun auton voi hurauttaa suoraan vapaaseen ruutuun, lähtee työpäivä mukavasti käyntiin. Kravattitehtaalla se onnistuu! Kiinteistössä on paikkoja 171 autolle, naapurissa sijaitsevassa Aimo Parkin hallissa niitä riittää vielä 700 lisää.
Kuuma, kuumempi, Vallila! Kravattitehtaan kotikenttä on vahvasti erityisesti nuorten, koulutettujen ja aktiivisten kaupunkilaisten suosiossa, mikä näkyy ja kuuluu kortteleissa. Täällä riittää inspiroivaa tekemistä työpäivän päätyttyä.
Hyvän ensivaikutelman voi antaa vain kerran. Kravattitehtaan aulapalvelun työntekijät tietävät tämän ja toimivat sen mukaisesti: he edustavat laadukkaasti ja ammattitaitoisesti myös sinun yritystäsi.
Rakennuksessa on lastauslaiturit sisäpihalla ja tavarahisseillä pääsee suoraan toimitiloihin.
Vapautuu
Heti
Rakennusvuosi
1926
Kerros
5 / 7
Energiatehokkuusluokka
Ei lain edellyttämää energiatodistusta
Näkyvällä paikalla
Hissi
Lastauslaituri
Ota yhteyttä
ScanReal Oy LKV
Opus Business Park
Hitsaajankatu 24
00810 Helsinki
info@scanreal.fi
Puh:
Näytä puhelinnumero
020 730 8830
Sopivat toimitilat yhdellä otolla!
Kartoitamme toimitilatarpeesi ja etsimme yrityksellesi parhaiten sopivat vapaat toimitilat. Koska vuokranantajat maksavat palvelumme, on tämä yrityksellesi veloituksetonta.
OTA YHTEYTTÄ - SOVI NÄYTTÖ!
Kaikki kohteemme eivät ole netissä, kerro tilatarpeesi niin kartoitamme vaihtoehdot.
Palvelumme on tilanhakijalle ilmainen
Pyydä lisätietoa
