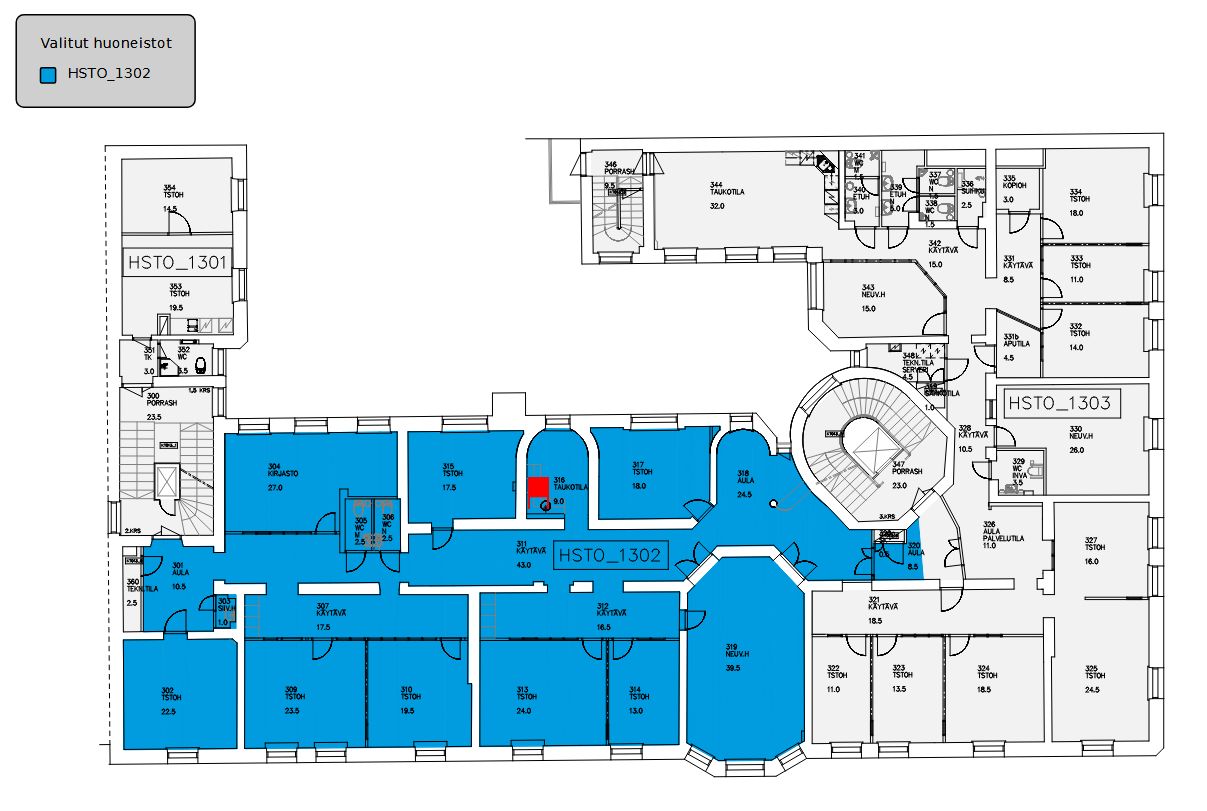
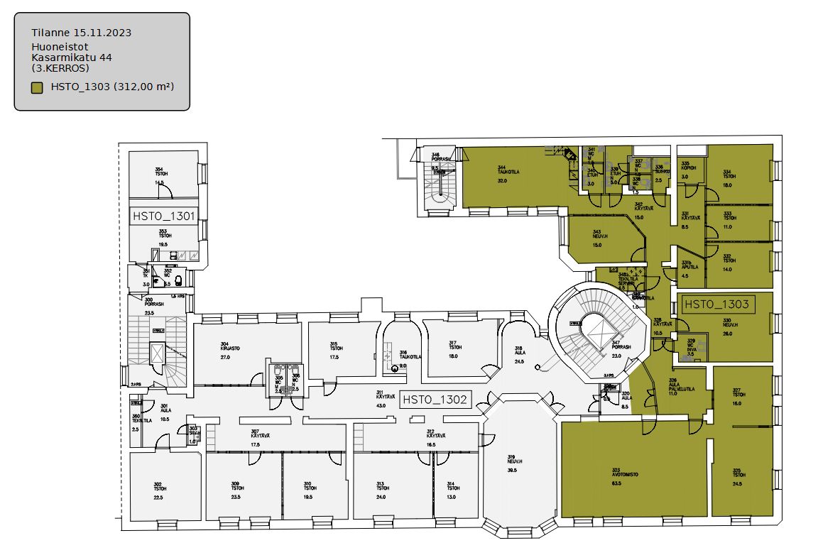
Vuokrataan toimistotilat - Helsinki
Kasarmikatu 44, Kaartinkaupunki, 00130 Helsinki #10840708
Vuokrattavana tasokasta huonetoimistotilaa. Kohde sijaitsee Kaartinkaupungissa, Esplanadin puiston kupeessa, Helsingin ydinkeskustassa.
Kiinteistössä on pääasiassa toimistotilaa sekä muutama kivijalassa sijaitseva liiketila. Alakerrassa sijaitsee ravintola ja lähettyviltä löytyy lukuisia keskustan lounasravintoloita sekä muita palveluita helpottamaan yrityksen arkea. Keskeisen sijainnin vuoksi kiinteistöön on hyvät kulkuyhteydet ja autoileville löytyy lähistöllä sijaitsevasta Kasarmintorin pysäköintihallista paikkoja.
Lisätiedot ja kohde-esittelyt 020 7290 710, lisää kohteita premises.fi
Energialuokka E.Kerros: 3
CRE PREMISES
Puh. Näytä puhelinnumero 020 7290 710
Vantaankoskentie 14
01670 VANTAA
