Vuokrataan toimistotilat - Helsinki
Keskuskatu 1B, Kluuvi, 00100 Helsinki #10840662
Vuokrataan ydinkeskustasta hyväkuntoinen ja edustava avotoimistotila. Huippu sijainnilla hieno toimisto, avoa ja huoneita.
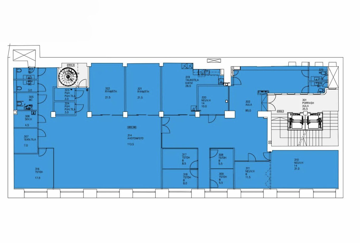
Helsingin businesskeskustan ytimessä sijaitseva liikekiinteistö Keskuskatu 1B on rakennettu vuonna 1920. Keskustan tyylikkäimmän kävelykadun varrella, Stockmannin tavarataloa vastapäätä sijaitsevassa rakennuksessa on toimistotilaa yhteensä 1.967 m2 ja liiketilaa yhteensä 735 m2.
Lisätietoja 020 7290 710 ja lisää kohteita premises.fi.
Kohteella ei ole lain edellyttämää energiatodistusta tai energialuokka ei tiedossa.Kerros: 3
Liitetiedostot
CRE PREMISES
Puh. Näytä puhelinnumero 020 7290 710
Vantaankoskentie 14
01670 VANTAA
