Vuokrataan liiketilat, tuotantotilat, varastotilat - Pirkkala
Autokeskuksentie 12, Linnakallio, 33960 Pirkkala #10840629
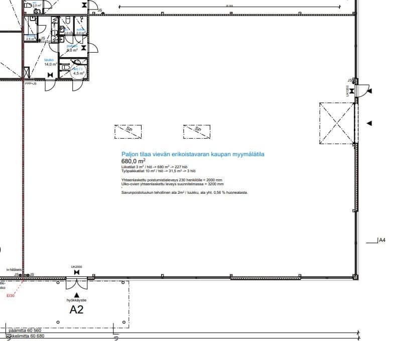
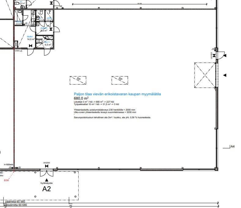
Vuokrataan Pirkkalan Linnakalliosta 1.5.2026 vapautuva katutason 735 m² liike-/varasto-/tuotantotila. Toimitila on katutasossa ja se sisältää pienet sosiaalitilat. Tilassa on nosto-ovi sekä erillinen sisäänkäynti. Kohteella on pihatilaa runsaasti.
Kohteen sijainti on mitä parhain. Ohitustien välittömässä läheisyydessä olevasta kiinteistöstä on nopeat liikenneyhteydet eri puolille Pirkanmaata sekä muualle Suomeen.
Tilat taipuvat käyttäjän tarpeiden mukaan esimerkiksi tuotanto-, varasto-, myynti- tai näyttelytiloiksi.
Kysy lisätietoja ja sovitaan käynti kohteelle!
Katutasossa
Näkyvällä paikalla
Hausala Oy
Erkkilänkatu 11, 33100 Tampere
Näytä puhelinnumero
050 472 7077
Mikko Ranta
Näytä puhelinnumero
050 360 6500
Mika Savikko
Näytä puhelinnumero
050 472 7077
