Vuokrataan toimistotilat - Helsinki
Malminkatu 16, Kamppi, 00180 Helsinki #10840619
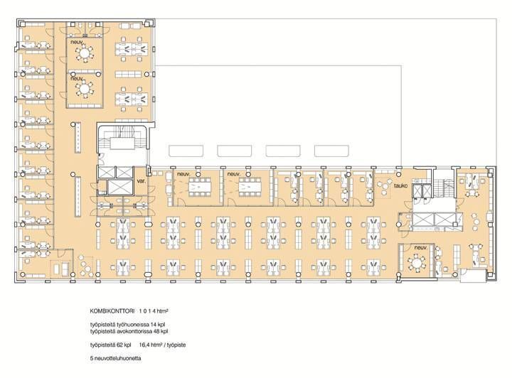
Vuonna 2009 täysin peruskunnostettu toimistokiinteistö VOIMATALO Kampintorin laidalla. Kiinteistö on saneerattu nykyajan vaatimusten mukaisesti, arkkitehti Arne Ervin perintöä kunnioittaen. Tilat ovat muuntojoustavia siten, että ne vastaavat yrityksen käyttötarpeita ja toimintakulttuuria. Kerrosala on n. 1000m2. Tilat voidaan jakaa huoneisiin, avotilaksi tai niiden yhdistelmäksi. Kiinteistö on varustettu jäähdyttävällä tilakohtaisella ilmastoinnilla sekä nykyaikaisella tietoliikenneverkolla.
Ota yhteyttä ja sovi esittely, vuokrauspalvelumme on tilanhakijoille maksuton.
Jaettavissa
Hissi
Senaatin Notariaatti Oy LKV
Lämmittäjänkatu 4 A
FIN-00880 Helsinki
Tel:
Näytä puhelinnumero
+358 9 7745 100
