Vuokrataan toimistotilat - Helsinki
Kaisaniemenkatu 1, Keskusta, 00100 Helsinki #10840594
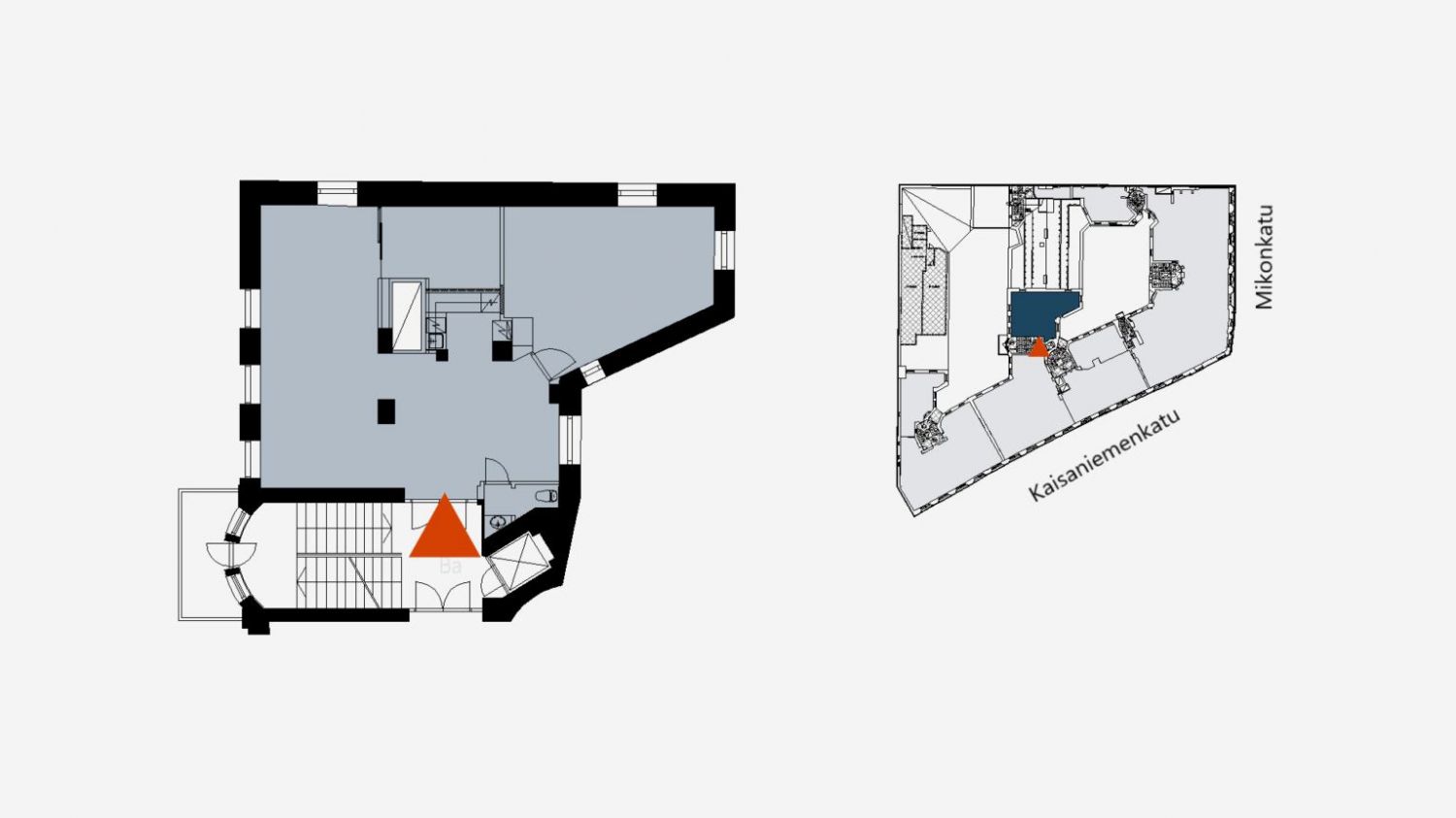
Vuokrataan viidennen kerroksen todella upea 94 m² jäähdytetty toimistotila Helsingin keskustasta. Tilasta löytyy oma keittiö, sekä wc.
Tämä lähes 100 vuotias kiinteistö sijaitsee Helsingin ydinkeskustassa monipuolisten palveluiden äärellä. Kellaritiloihin on uusittu suihku ja pukutilat. Lisäksi tiloihin on rakennettu pyörien säilytys- ja latausmahdollisuudet. Kiinteistö on hyvien julkisen liikenteen yhteyksien päässä, rautatieasema 500 m, metroasema 200 m, raitiovaunupysäkki 100 m, bussipysäkki 100 m.
Kysy lisätietoja tai sovitaan käynti kohteelle jo tänään!
Hissi
Hausala Oy
Erkkilänkatu 11, 33100 Tampere
Näytä puhelinnumero
050 472 7077
Mikko Ranta
Näytä puhelinnumero
050 360 6500
Mika Savikko
Näytä puhelinnumero
050 472 7077
