Vuokrataan toimistotilat - Helsinki
Yrjönkatu 7, Keskusta, 00130 Helsinki #10840571
Bulevardin ja Yrjönkadun kulmassa 3. kerroksessa sijaitseva valoisa toimistotila keittiöllä ja wc-tiloilla (1 asiakas-wc). Sisäänkäynti Yrjönkadun puoleisesta C-portaasta. Tila on ilmastoitu ja siinä on nopeat tietoliikenneyhteydet. Kiinteistössä on myös vuokrattavissa erikokoisia neuvottelutiloja cateringpalveluilla. Kevyen liikenteen suosijoille talossa on yhteiskäyttöiset suihku ja sosiaalitilat. Ota yhteyttä ja sovi esittely, vuokrauspalvelumme on tilanhakijoille maksuton.
Osoite
Yrjönkatu 7, 00130 Helsinki
Tilatyyppi
Toimistotilaa
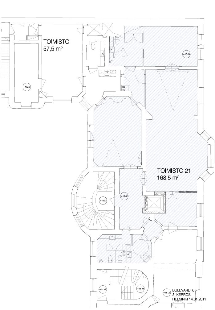
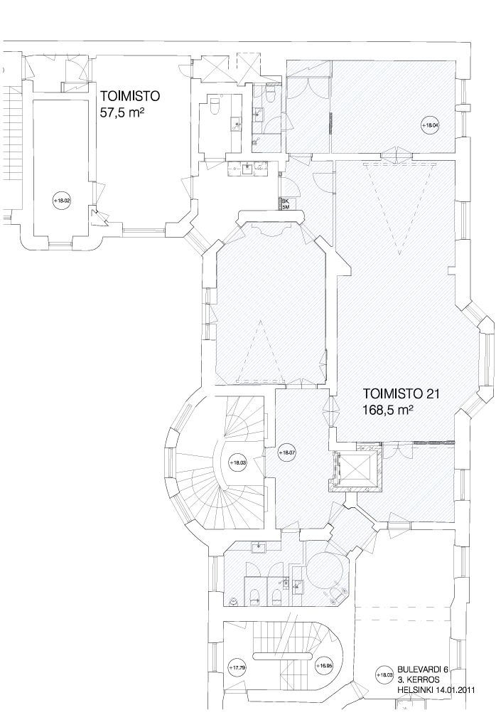
168 m2
Pohjapiirros
Kiinteistö
Rake-talo
Sijainti
Bulevardin ja Yrjönkadun kulmassa.
Pysäköinti
Aimo-park Erottajan pysäköintilaitokseen suoraan hissillä.
Palvelut
Rake-Talon kokous- ja juhlatilat sekä viihtyisä Sky-lounge katolla ovat käytettävissä.
Kulkuyhteydet
HKL, ratikat ja bussit.
Vapautuu
Heti
Rakennusvuosi
1894
Kerros
3 / 7
Energiatehokkuusluokka
Ei lain edellyttämää energiatodistusta
Näkyvällä paikalla
Hissi
Liitetiedostot
Ota yhteyttä
Senaatin Notariaatti Oy LKV
Lämmittäjänkatu 4 A
FIN-00880 Helsinki
Tel:
Näytä puhelinnumero
+358 9 7745 100
Pyydä lisätietoa
