Vuokrataan toimistotilat - Helsinki
Pitkänsillanranta 3, Hakaniemi, 00530 Helsinki #10840537
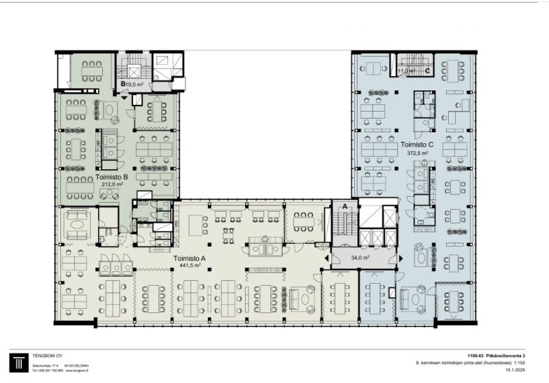
Vuokrataan 8. kerroksen valoisa jäähdytyksellä varustettu toimistotila hienoilla merinäkymillä kolmeen suuntaan. Tilassa oma sauna, pesutilat ja parvekkeellinen lepohuone, remontoidaan käyttäjän toiveet ja tarpeet huomioiden. Päähissit avautuvat suoraan tilaan. Ota yhteyttä ja sovi esittely, vuokrauspalvelumme on tilanhakijoille maksuton.
Osoite
Pitkänsillanranta 3, 00530 Helsinki
Tilatyyppi
Toimistotilaa
212 m2
Tilajako
Jaettavissa
8. krs jaettavissa osiin 212 m2/441,5 m2/372,5 m2.
Pysäköinti
Hakaniemen torilla sijaitseva parkkihalli.
Vapautuu
Heti
Kerros
8 / 10
Energiatehokkuusluokka
Ei lain edellyttämää energiatodistusta
Jaettavissa
Hissi
Ota yhteyttä
Senaatin Notariaatti Oy LKV
Lämmittäjänkatu 4 A
FIN-00880 Helsinki
Tel:
Näytä puhelinnumero
+358 9 7745 100
Pyydä lisätietoa
