Vuokrataan toimistotilat - Helsinki
Sentnerikuja 1, Lassila, 00440 Helsinki #10840525
Vuokrattavissa toimistotilaa nykyaikaisesta toimistokiinteistöstä.
Osoite
Sentnerikuja 1, 00440 Helsinki
Tilatyyppi
Toimistotilaa
1564 m2
Tilajako
Jaettavissa
Kiinteistö
Vapaana laadukasta toimistotilaa. Kiinteistön vuokrattavat toimitilat ovat joustavasti muokattavissa eri kokoisten organisaatioiden tarpeisiin esimerkiksi yhdistelemällä kerroksia.
Tilat voidaan toteuttaa niin huonetoimistoina kuin moderneina avo- tai monitilatoimistoina. Toimistojen lisäksi kiinteistössä on sisääntulokerroksessa sijaitsevia aputiloja, kuten aulapalvelupiste, kokouskeskus, saunaosasto sekä pienvarastoja.
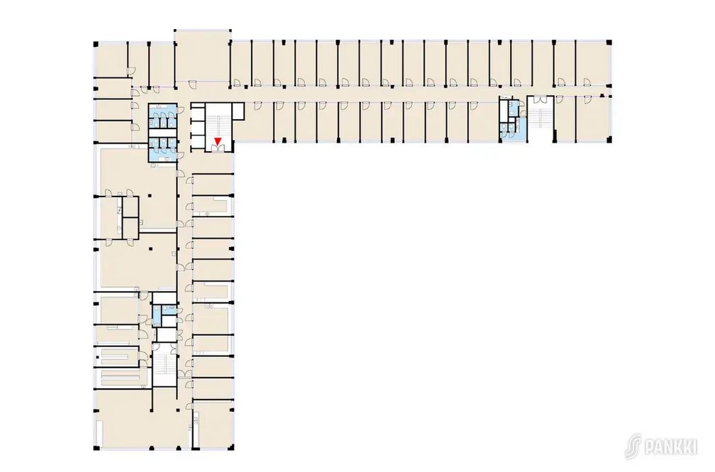
Vuokrattava toimistotila sijaitsee kiinteistön 4. kerroksessa ja kokonais pinta-alaltaan on yhteensä 1564m². Tilaan voidaan yhdistää viereinen tila!
Tervetuloa tutustumaan tiloihin!
Tilat voidaan toteuttaa niin huonetoimistoina kuin moderneina avo- tai monitilatoimistoina. Toimistojen lisäksi kiinteistössä on sisääntulokerroksessa sijaitsevia aputiloja, kuten aulapalvelupiste, kokouskeskus, saunaosasto sekä pienvarastoja.
Vuokrattava toimistotila sijaitsee kiinteistön 4. kerroksessa ja kokonais pinta-alaltaan on yhteensä 1564m². Tilaan voidaan yhdistää viereinen tila!
Tervetuloa tutustumaan tiloihin!
Sijainti
Kiinteistö sijaitsee Vihdintien ja Kehä I:n välittömässä läheisyydessä. Muutaman minuutin kävelymatkan päässä Sentnerikujasta on Pohjois-Haagan juna-asema, josta on Kehäradan kautta yhteys myös Helsinki-Vantaan lentoasemalle. Myös helposti bussilla saavutettavissa.
Vapautuu
Heti
Energiatehokkuusluokka
Ei lain edellyttämää energiatodistusta
Katutasossa
Näkyvällä paikalla
Jaettavissa
Ota yhteyttä
Arvo Premises Oy
Joakim Kukkonen
Osakas, Toimitilavälittäjä
Näytä puhelinnumero
040 555 8106
Seppo Pakarinen
Osakas, Kiinteistönvälittäjä. LKV, YKV, AKA
Näytä puhelinnumero
040-703 8000
Pyydä lisätietoa
