Vuokrataan liiketilat - Espoo
Länsituuli 1, Tapiola, 02100 Espoo #10840503
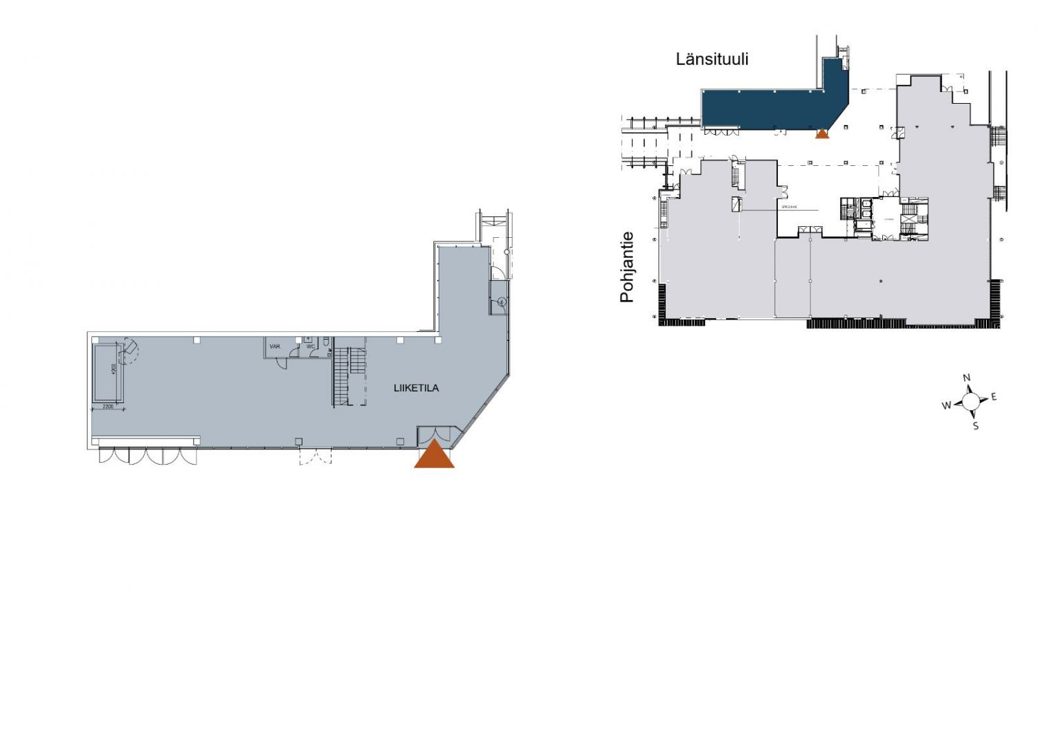
Vuokrataan katutason 241 m² liiketila Tapiolassa.
Tilassa on runsaasti ikkunapinta-alaa ja se on erinomaisesti saavutettavissa. Tila sijaitsee keskeisesti Tapiolan keskuksessa. Vuokrataan elokuun 2026 loppuun saakka.
Kysy lisätietoja tai sovitaan käynti kohteelle jo tänään!
Osoite
Länsituuli 1, 02100 Espoo
Tilatyyppi
Liiketilaa
241 m2
Kiinteistö
Tapiolan Länsikulma
Vapautuu
Kysy
Rakennusvuosi
1984
Ota yhteyttä
Hausala Oy
Erkkilänkatu 11, 33100 Tampere
Näytä puhelinnumero
050 472 7077
Mikko Ranta
Näytä puhelinnumero
050 360 6500
Mika Savikko
Näytä puhelinnumero
050 472 7077
Pyydä lisätietoa
