Vuokrataan toimistotilat, tuotantotilat - Vantaa
Koivuvaarankuja 2, Pähkinärinne, 01640 Vantaa #10840342
Vuokrattavana toisen kerroksen hyvin siisti toimisto-/tuotantotila.
Osoite
Koivuvaarankuja 2, 01640 Vantaa
Tilatyyppi
Toimistotilaa
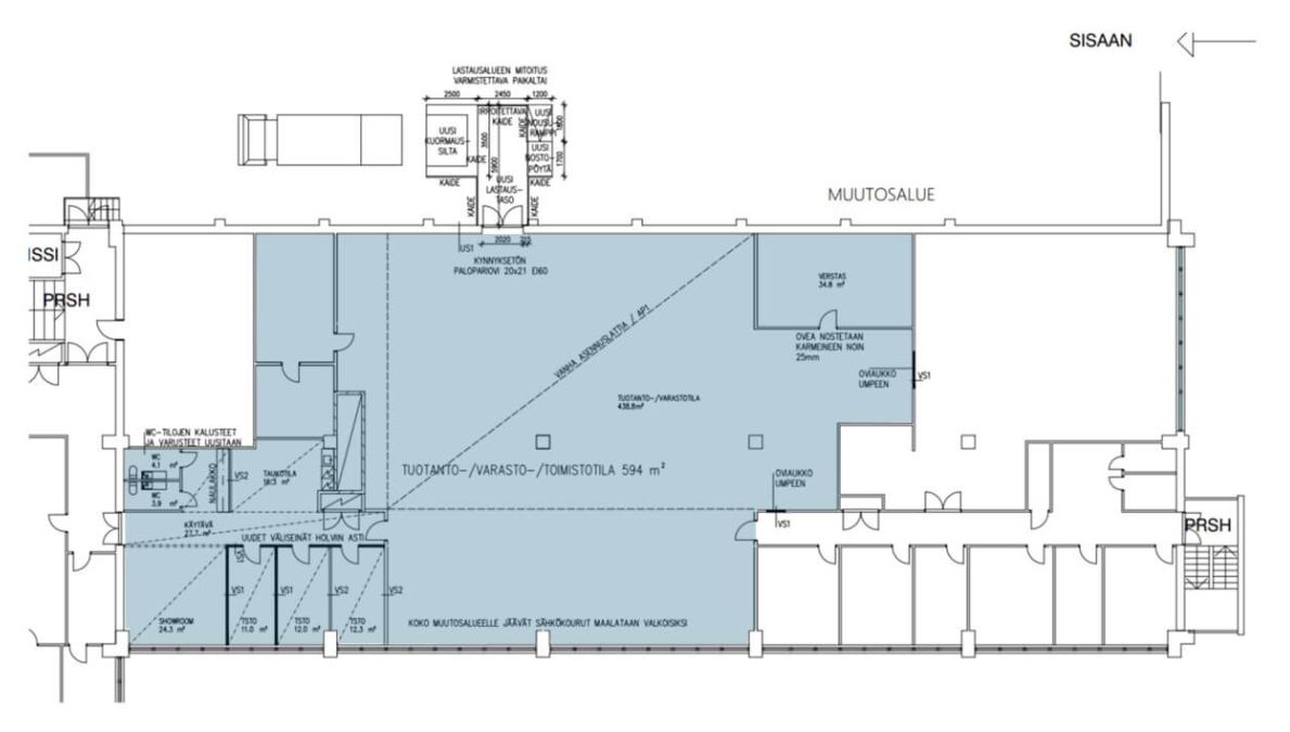
594 m2
Tuotantotilaa
594 m2
Yhteensä
594 m2
Kiinteistö
Vuokrattavana toisen kerroksen hyvin siisti toimisto-/tuotantotila. Toimitila sisältää myös toimistoa ja siistin keittiön. Toimitilasta on suora yhteys lastauslaiturille ja oma lastaustaso.
Sijainti
Koivuvaara, Vantaa
Pysäköinti
Kiinteistöllä laajat pysäköintialueet.
Palvelut
-Lounasravintola
-Edustus- ja neuvottelutiloja
-R-Kioski
-Suihku- ja saunatilat
-Uima-allas
-Kuntosali
-Edustus- ja neuvottelutiloja
-R-Kioski
-Suihku- ja saunatilat
-Uima-allas
-Kuntosali
Kulkuyhteydet
-Bussi
-Oma auto
-Oma auto
Vapautuu
01.03.2026
Kerros
2
Energiatehokkuusluokka
Ei lain edellyttämää energiatodistusta
Näkyvällä paikalla
Hissi
Ota yhteyttä
REALIUM OY LKV
Tammasaarenkatu 1, 00180 Helsinki
Vaihde:
Näytä puhelinnumero
010 326 346
Tuomo Mäkelä
tuomo.makela@realium.fi
p.
Näytä puhelinnumero
044 050 1158
Joel Keto
joel.keto@realium.fi
p.
Näytä puhelinnumero
045 317 0330
KAIKKI TILAVAIHTOEHDOT KERRALLA!
SOITA - MEILAA JA TILAA NÄYTTÖ!
Ilmainen palvelu tilanhakijoille.
Kartoitamme parhaat tilavaihtoehdot.
Kaikki kohteet eivät ole netissä.
Pyydä lisätietoa
