Myydään liiketilat - Pöytyä
Haverintie 12, 21900 Pöytyä #10840186
Myytävänä ravintolarakennus n. 500 m². Uusi hp. 17.890 €.
Osoite
Haverintie 12, 21900 Pöytyä
Tilatyyppi
Liiketilaa
500 m2
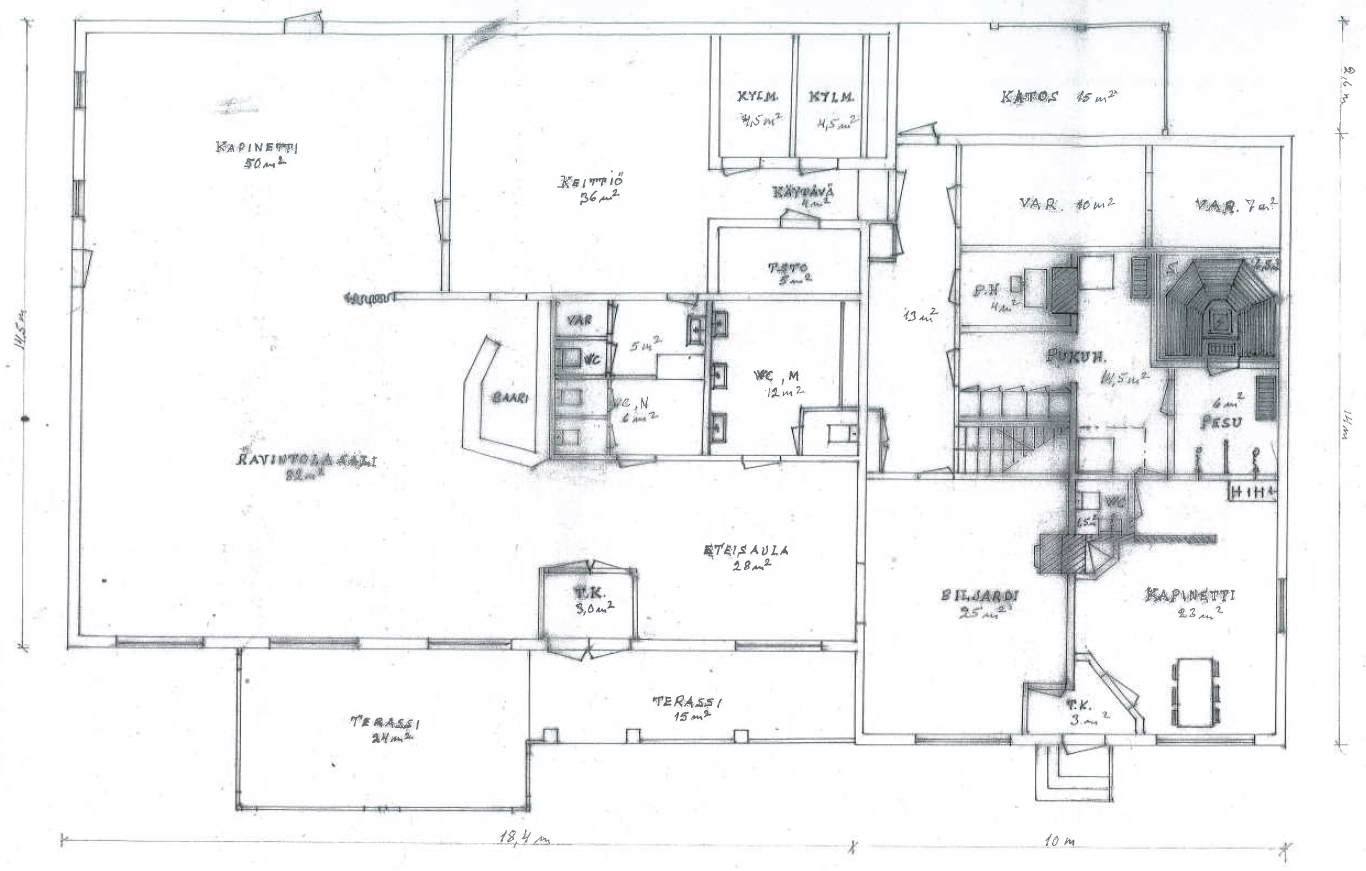
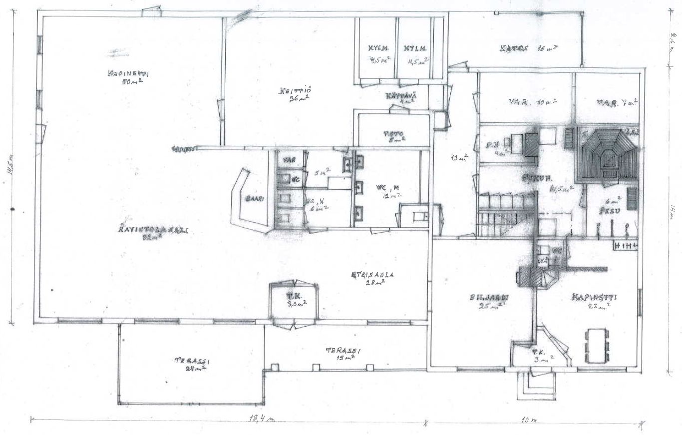
Pohjapiirros
Tila soveltuu
Ravintola, kahvila, elintarviketila
Myyntihinta
17.890 €
Muuta
Toimiva ravintola- ja majoitusliiketoimintaa mahdollistava rakennus keskeisellä paikalla Yläneen keskustassa.
Rakennuksessa on täydellinen ruoka- ja anniskeluravintola sekä pitopalveluliiketoiminnan harjoittamiseen mahdollistavat tilat ja monipuolinen keittiö. Ravintolan koneet ja laitteet sekä kalusteet sisältyvät kauppaan.
Asiakaspaikkoja on sisällä 146 kpl ja ulkona piha-alueilla on yhteensä 155 kpl, joista etuterassilla on 30 kpl ja takaterassilla on 125 kpl asiakaspaikkoja. Lisäksi asiakaspaikkoja on saunosastolla 20 kpl.
Oman liiketoiminnan voi aloittaa vaikka kauppaa seuraavana päivänä.
Rakennus on rakennettu kahdessa osassa, vanhempi 2-kerroksinen osa 1900 -luvun alussa ja 1-tasossa oleva laajennusosa 1970.
Rakennuksessa on ravintolatilojen lisäksi majoitustiloina erillisiä huoneita ja keittiötila sekä saunaosasto.
Kiinteistöllä on oma maapohja, jonka pinta-ala on 1.400 m².
Mahdollisuus ostaa Kiinteistö Oy Yläneen Kestihovi -nimisen yhtiön koko osakekanta.
Ravintola Kestihovin liiketoiminta ei ole myynnissä.
Uusi hintapyyntö 17.890 €.
Tähän kannattaa ehdottomasti tutustua!
www.kaupunki.com
Rakennuksessa on täydellinen ruoka- ja anniskeluravintola sekä pitopalveluliiketoiminnan harjoittamiseen mahdollistavat tilat ja monipuolinen keittiö. Ravintolan koneet ja laitteet sekä kalusteet sisältyvät kauppaan.
Asiakaspaikkoja on sisällä 146 kpl ja ulkona piha-alueilla on yhteensä 155 kpl, joista etuterassilla on 30 kpl ja takaterassilla on 125 kpl asiakaspaikkoja. Lisäksi asiakaspaikkoja on saunosastolla 20 kpl.
Oman liiketoiminnan voi aloittaa vaikka kauppaa seuraavana päivänä.
Rakennus on rakennettu kahdessa osassa, vanhempi 2-kerroksinen osa 1900 -luvun alussa ja 1-tasossa oleva laajennusosa 1970.
Rakennuksessa on ravintolatilojen lisäksi majoitustiloina erillisiä huoneita ja keittiötila sekä saunaosasto.
Kiinteistöllä on oma maapohja, jonka pinta-ala on 1.400 m².
Mahdollisuus ostaa Kiinteistö Oy Yläneen Kestihovi -nimisen yhtiön koko osakekanta.
Ravintola Kestihovin liiketoiminta ei ole myynnissä.
Uusi hintapyyntö 17.890 €.
Tähän kannattaa ehdottomasti tutustua!
www.kaupunki.com
Vapautuu
Heti
Katutasossa
Näkyvällä paikalla
Ota yhteyttä
Kaupunkikiinteistöt LKV
Tiedustelut puh. Näytä puhelinnumero 0440 245 600 / Ismo Koskinen
http://www.kaupunki.comPyydä lisätietoa
