Vuokrataan toimistotilat - Helsinki
Tallberginkatu 2, Ruoholahti, 00180 Helsinki #10840110
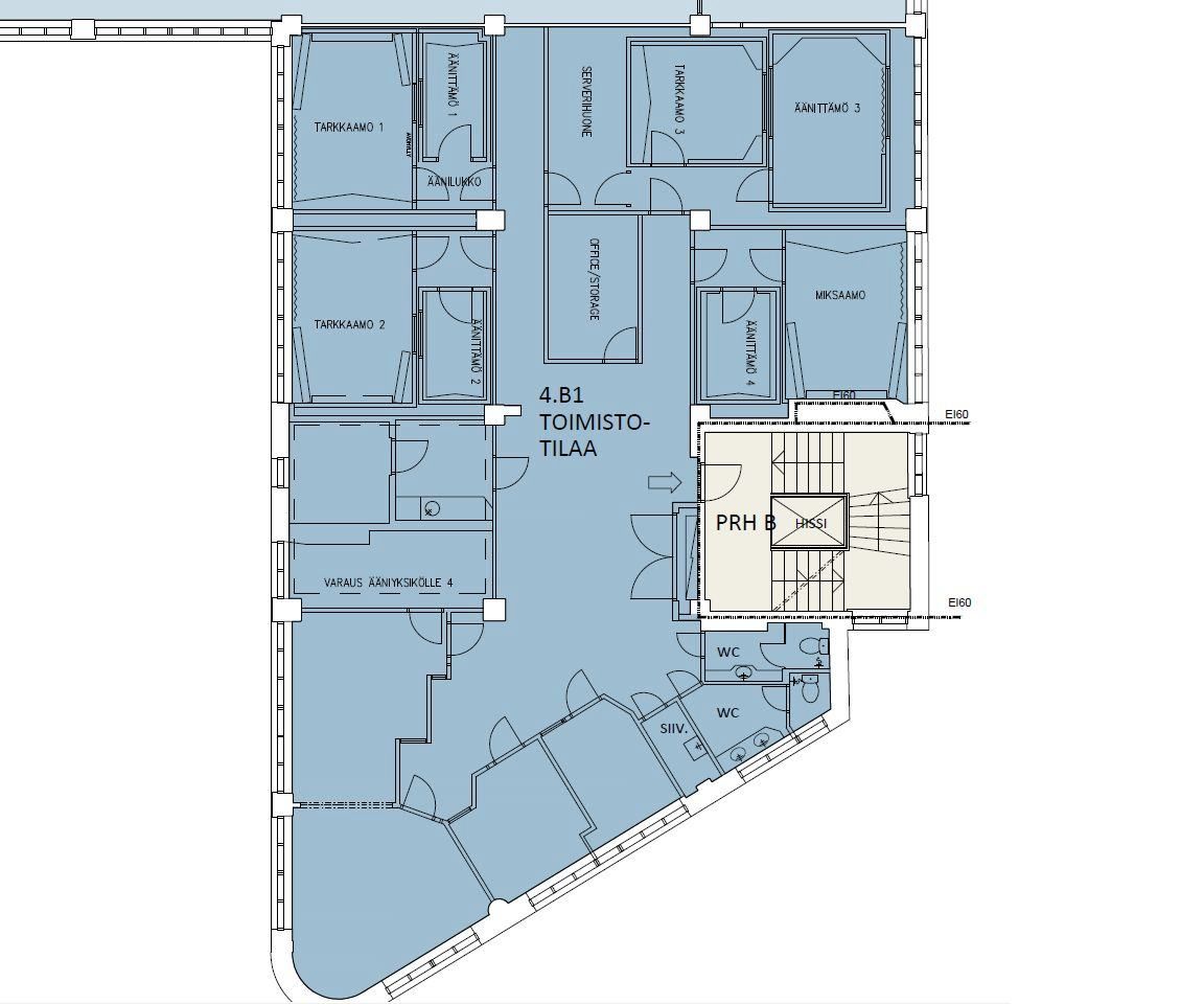
Vuokrataan Helsingin Ruoholahdesta neljännen kerroksen 282 m² toimistotila. Tilassa on toiminut äänitysstudio.
Tallberginkatu 2 tarjoaa yrityksellesi nykyaikaiset ja muuntojoustavat tilat, jotka soveltuvat erinomaisesti monenlaisiin tarpeisiin. Kiinteistö sijaitsee keskeisellä paikalla hyvien kulkuyhteyksien varrella, mikä tekee siitä helposti saavutettavan niin julkisilla kulkuvälineillä kuin omalla autolla.
Tilat ovat valoisia ja tehokkaasti suunniteltuja, ja kiinteistössä on kaikki tarvittavat palvelut sujuvaan arkeen. Läheltä löytyvät myös monipuoliset palvelut ja lounasvaihtoehdot, jotka tukevat työpäivän sujuvuutta.
Jos etsit toimistotilaa, joka tukee yrityksesi kasvua ja tarjoaa viihtyisän ympäristön, tämä kohde on erinomainen valinta. Kysy rohkeasti lisätietoja ja sovitaan käynti kohteella jo tänään!
Hissi
Hausala Oy
Erkkilänkatu 11, 33100 Tampere
Näytä puhelinnumero
050 472 7077
Mika Savikko
Näytä puhelinnumero
050 472 7077
Mikko Ranta
Näytä puhelinnumero
050 360 6500
