Vuokrataan toimistotilat - Helsinki
Lautatarhankatu, Kalasatama, 00580 Helsinki #10840089
Rouhea korkea tila. Parhaimmillaan avotilana, showroomina jne. Tilaan tulee tavarahissi.
Osoite
Lautatarhankatu, 00580 Helsinki
Tilatyyppi
Toimistotilaa
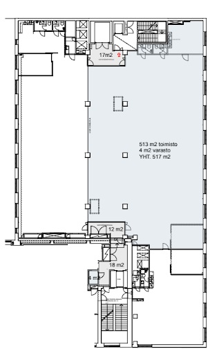
514 m2
Pohjapiirros
Kiinteistö
Selkeäpohjainen, korkea tila, johon tulee tavarahissi. Isot ikkunat Teurastamon suuntaan. Tila huokuu tehdastilan tunnelmaa. Helmi modernien toimistojen seassa.
Huoneita voi rakentaa. Pientä pintasilausta vaille muuttovalmis.
Huoneita voi rakentaa. Pientä pintasilausta vaille muuttovalmis.
Sijainti
Kehittyvä Kalasatama.
Ympäristö
Lindström Talo sijaitsee Kalasataman kehittyvällä ja trendikkäällä alueella hyvien kulkuyhteyksien varrella.
Pysäköinti
Mahdollisuus pysäköintipaikkoihin.
Lämmin autohalli talon alla.
Lämmin autohalli talon alla.
Palvelut
Vuorokauden ympäri toimiva itsepalvelukahvila takaa, että ruokaa ja juomaa on aina tarjolla. Kiinteistössä toimii ravintola Antell, josta voit tilata myös lounaat palavereihin sekä kokous- ja edustustarjoilut.
Kulkuyhteydet
Bussi 30 m, Raitiovaunu 350 m, Metro 400 m, Lentoasema 16 km. Kauppakeskus REDI kävelymatkan päässä.
Muuta
Tilassa tavarahissi.
Vapautuu
Heti
Kerros
2 / 5
Ympäristöluokitus
BREEAM In-Use Good -sertifioitu
Näkyvällä paikalla
Ota yhteyttä
Suomen Kiinteistöinstituutti Oy
Svinhufvudintie 1
00570 HELSINKI - KULOSAARI
Tom Dahlström Näytä puhelinnumero 050 66 959
http://www.kiinteistoinstituutti.fiPyydä lisätietoa
