Vuokrataan liiketilat - Helsinki
Siltasaarenkatu 8-10, Hakaniemi, 00530 Helsinki #10840080
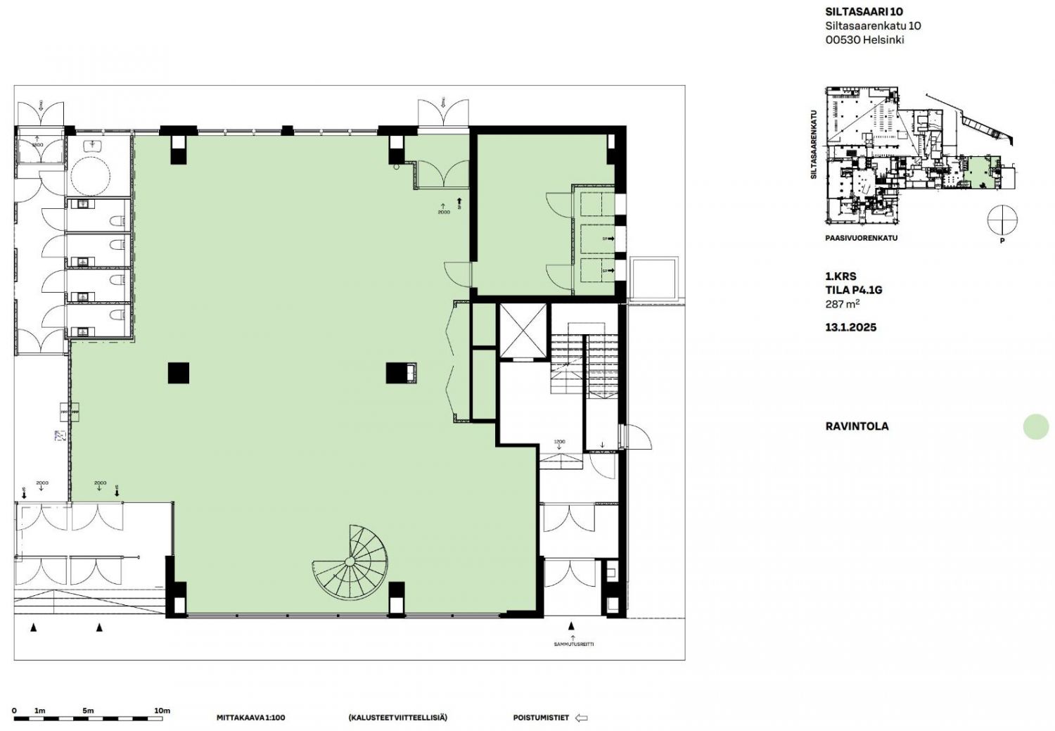
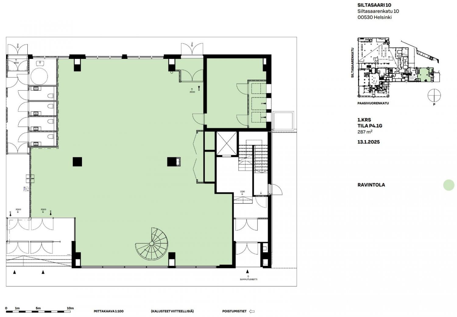
Vuokrataan Helsingin Hakaniemestä ensimmäisen kerroksen 293 m² Liike-/ravintolatila.
Siltasaarenkatu 8-10 tarjoaa yrityksellesi nykyaikaiset ja muuntojoustavat tilat, jotka soveltuvat erinomaisesti monenlaisiin tarpeisiin. Kiinteistö sijaitsee keskeisellä paikalla hyvien kulkuyhteyksien varrella, mikä tekee siitä helposti saavutettavan niin julkisilla kulkuvälineillä kuin omalla autolla.
Tilassa todella isot ikkunat Paasivuore puistikko näkymillä ja mahdollisuus hakea kaupungilta parklet terassia ravintolan eteen. Alakerran 67 m²:n tila kuuluu tilaan. Alakertaan saa tarvittaessa baarin tai kabinetin. Ravintolahenkilökunnan sosiaalitilat löytyvät kellarista, alakerran tilan vierestä. Erinomainen logistiikka, autolla suoraan takaovelle, huoltopihan puolelta Pohjakuvaan merkattu ohjeellinen keittiön alue, johon tekniikka saadaan rakennettua. Infra valmiina ravintolakeittiölle (LVIS).
Kysy rohkeasti lisätietoja ja sovitaan käynti kohteella jo tänään!
Hausala Oy
Erkkilänkatu 11, 33100 Tampere
Näytä puhelinnumero
050 472 7077
Mika Savikko
Näytä puhelinnumero
050 472 7077
Mikko Ranta
Näytä puhelinnumero
050 360 6500
