Vuokrataan toimistotilat - Helsinki
Lautatarhankatu, Kalasatama, 00580 Helsinki #10840068
Uniikki upea korkeakattoinen ja avoin ullakkotila.
Osoite
Lautatarhankatu, 00580 Helsinki
Tilatyyppi
Toimistotilaa
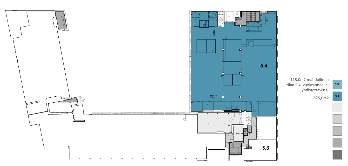
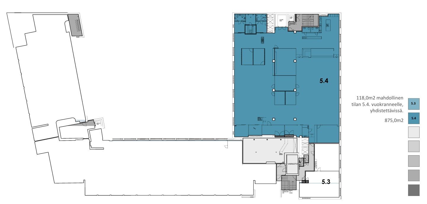
875 m2
Pohjapiirros
Kiinteistö
Tilassa kattoikkunoita, sisäparvi, uusittu iso keittiö, lounge, takka ja sauna sekä tavarahissi.
Sijainti
Kalasatama
Pysäköinti
Maksullinen vieraspysäköinti sisäpihalla, ajo Lautatarhankadun puolelta. Asiakaspysäköintimahdollisuus pysäköintihallissa.
Palvelut
Vuorokauden ympäri toimiva itsepalvelukahvila takaa, että ruokaa ja juomaa on aina tarjolla. Kiinteistössä toimii oma ravintola josta voit tilata myös lounaat palavereihin sekä kokous- ja edustustarjoilut.
Kulkuyhteydet
Bussi 30 m, Raitiovaunu 350 m, Metro 400 m, Lentoasema 16 km. Kauppakeskus REDI kävelymatkan päässä.
Muuta
Olohuonemaisten tilojen lisäksi varjoinen sisäpiha houkuttelee työskentelemään ja kahvittelemaan toimistotilojen ulkopuolellakin.
Vapautuu
Heti
Kerros
5 / 5
Ympäristöluokitus
BREEAM In-Use Very Good
Näkyvällä paikalla
Hissi
Ota yhteyttä
Suomen Kiinteistöinstituutti Oy
Svinhufvudintie 1
00570 HELSINKI - KULOSAARI
Tom Dahlström Näytä puhelinnumero 050 66 959
http://www.kiinteistoinstituutti.fiPyydä lisätietoa
