Vuokrataan toimistotilat - Helsinki
Pursimiehenkatu 29-31, Punavuori, 00150 Helsinki #10840050
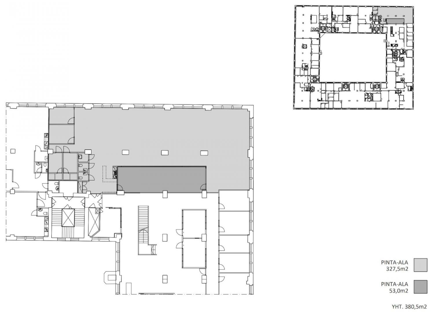
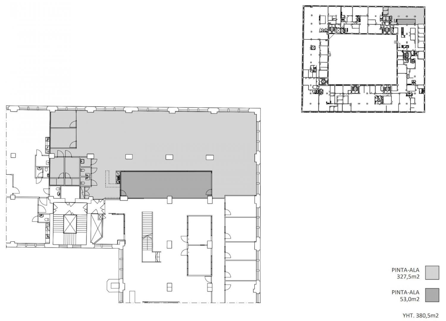
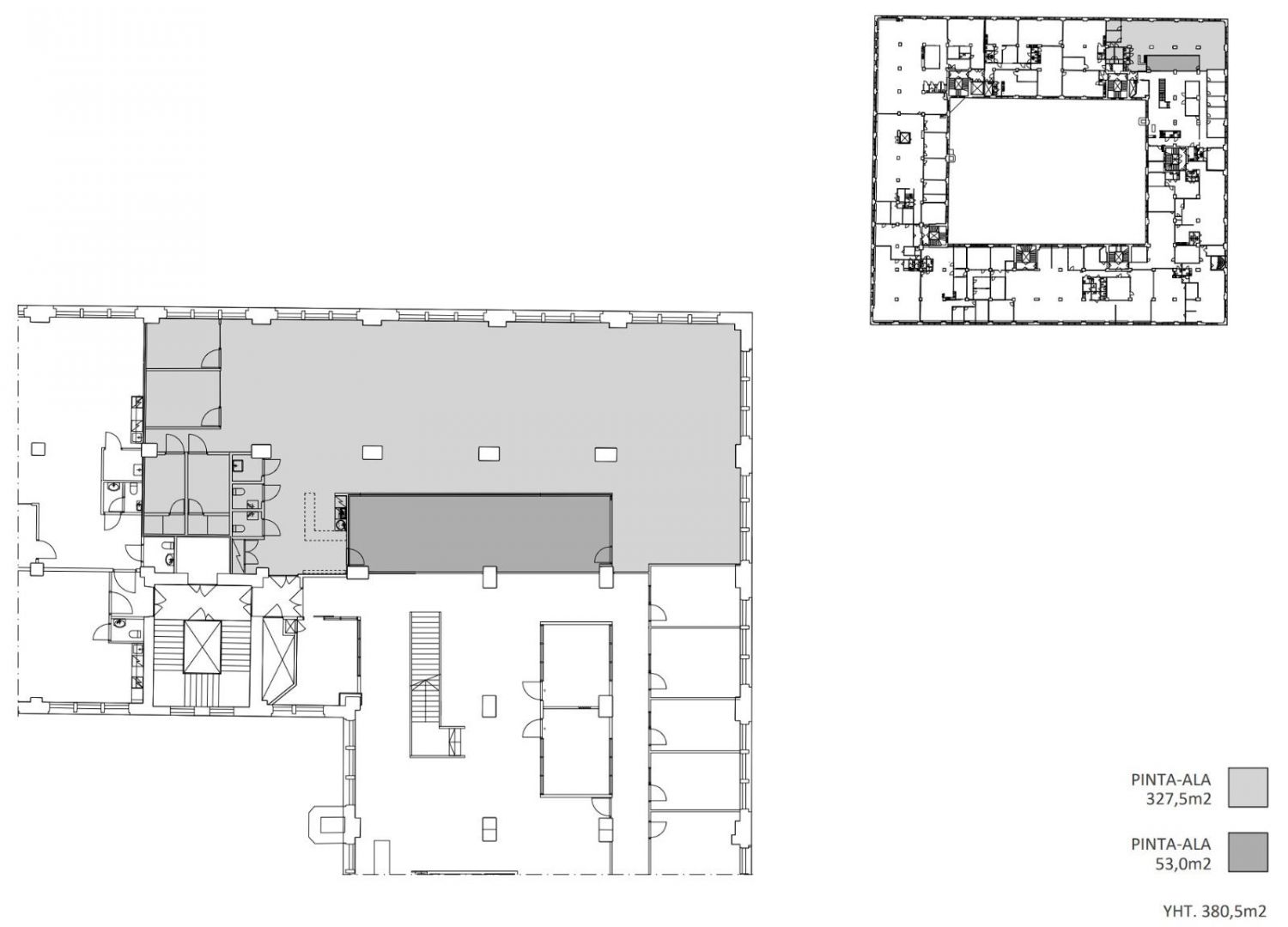
Vuokrataan Helsingin Punavuoresta toisen kerroksen 327 m² toimistotila. Korkea toimitila tunnelmallisessa Merikorttelissa.
Tunnelmallinen Merikortteli on ainutlaatuinen kiinteistö merellisen Punavuoren sydämessä.
Talossa toimii monipuolinen joukko yrityksiä kahvipaahtimoista mainostoimistoihin, jotka yhdessä muodostavat ainutlaatuisen ja eloisan työyhteisön. Merikorttelin palvelutarjontaan kuuluu italialaisesta pizzakulttuurista elävä Forzan ja leipomo-ravintola Levain. Korttelissa on myös tunnelmallinen elokuvateatteri Riviera. Viime vuosina valtavasti kehittyneellä Telakkakadulla sijaitsevasta Merikorttelista löytyy jo entuudestaan muun muassa kahvipaahtimo-kahvila Kaffa Roastery ja lounasravintola-kahvila Moko Market Café.
Merikortteli tarjoaa yrityksellesi nykyaikaiset ja muuntojoustavat tilat, jotka soveltuvat erinomaisesti monenlaisiin tarpeisiin. Kiinteistö sijaitsee keskeisellä paikalla hyvien kulkuyhteyksien varrella, mikä tekee siitä helposti saavutettavan niin julkisilla kulkuvälineillä kuin omalla autolla.
Jos etsit toimistotilaa, joka tukee yrityksesi kasvua ja tarjoaa viihtyisän ympäristön, tämä kohde on erinomainen valinta.
Kysy rohkeasti lisätietoja ja sovitaan käynti kohteella jo tänään!
Näkyvällä paikalla
Hausala Oy
Erkkilänkatu 11, 33100 Tampere
Näytä puhelinnumero
050 472 7077
Mika Savikko
Näytä puhelinnumero
050 472 7077
Mikko Ranta
Näytä puhelinnumero
050 360 6500
