Vuokrataan tuotantotilat, varastotilat - Helsinki
Valokaari 10, Suutarila, 00750 Helsinki #10839925
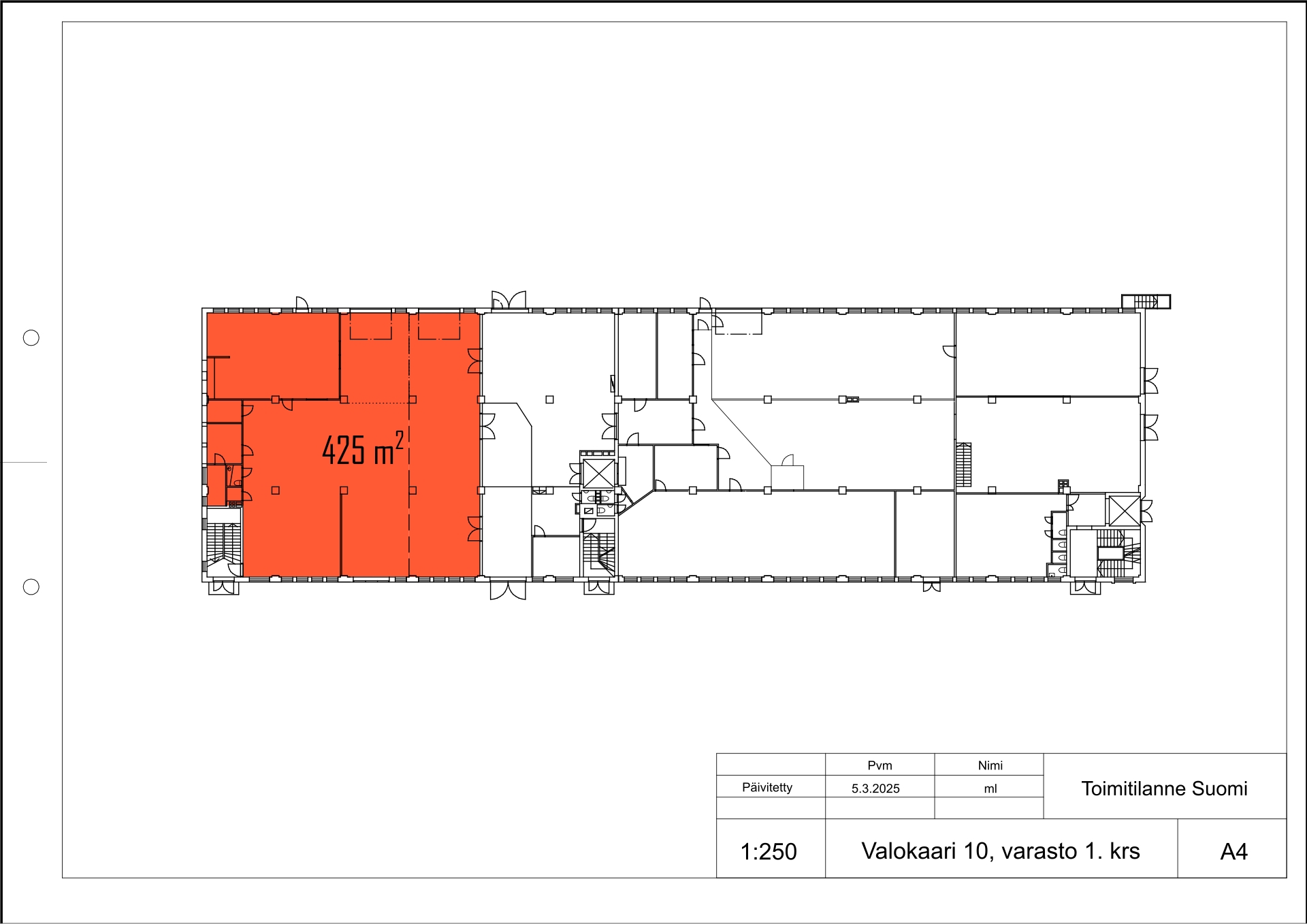
Perinteikkäästä teollisuusmiljööstä läpiajettava katutason 425 m² tuotanto- tai varastotila.
Osoite
Valokaari 10, 00750 Helsinki
Tilatyyppi
Tuotantotilaa
425 m2
Varastotilaa
425 m2
Yhteensä
425 m2
Pohjapiirros
Kiinteistö
Tiloissa on toiminut pitkään autopalvelualan yritys, mutta tila ei sovellu autopesulaksi. Tilan korkeus on noin 3 m ja sinne johtaa pihalta kaksi omaa nosto-ovea ja taitto-ovi. Mainio keittiö. Aula sopii esim. asiakkaiden vastaanottamiseen. Pohjapiirrokseen katkoviivalla merkitty kevyt väliseinä voidaan purkaa tarvittaessa.
Sijainti on tunnettu ja hyvä. Pääkaupunkiseudun selkärangalle, Kehä 3:lle, on alle kilometri, Helsinki-Vantaan lentoasemalle alle 10 kilometriä ja Vuosaaren satamaan vain hieman reilu 10 km. Lisätietoa kiinteistöstä.
Sijainti on tunnettu ja hyvä. Pääkaupunkiseudun selkärangalle, Kehä 3:lle, on alle kilometri, Helsinki-Vantaan lentoasemalle alle 10 kilometriä ja Vuosaaren satamaan vain hieman reilu 10 km. Lisätietoa kiinteistöstä.
Vapautuu
Heti
Kerros
1 / 3
Energiatehokkuusluokka
Ei lain edellyttämää energiatodistusta
Katutasossa
Hissi
Ota yhteyttä
ScanReal Oy LKV
Opus Business Park
Hitsaajankatu 24
00810 Helsinki
info@scanreal.fi
Puh:
Näytä puhelinnumero
020 730 8830
Sopivat toimitilat yhdellä otolla!
Kartoitamme toimitilatarpeesi ja etsimme yrityksellesi parhaiten sopivat vapaat toimitilat. Koska vuokranantajat maksavat palvelumme, on tämä yrityksellesi veloituksetonta.
OTA YHTEYTTÄ - SOVI NÄYTTÖ!
Kaikki kohteemme eivät ole netissä, kerro tilatarpeesi niin kartoitamme vaihtoehdot.
Palvelumme on tilanhakijalle ilmainen
Pyydä lisätietoa
