Vuokrataan toimistotilat - Helsinki
Osmontie 38, Käpylä, 00610 Helsinki #10839917
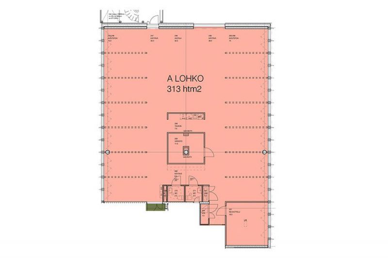
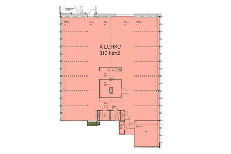
Edustavaa toimistotilaa Käpylässä Tuusulantien varrella. Tämä toisen kerroksen toimisto on pääosin avotilatoimisto mutta huoneita voidaan helposti lisätä. Nykyaikaisessa LEED-ympäristösertifioidussa GOLD-tason kiinteistössä on jäähdyttävä ilmastointi, sähköinen vastaanotto, suihku- ja pukuhuonetilat, sekä autohalli. Kaksi erilaista lounasravintolaa viereisissä taloissa. Erinomaiset liikenneyhteydet kaikkiin ilmansuuntiin. Ota yhteyttä ja sovi esittely, vuokrauspalvelumme on tilanhakijoille maksuton.
Näkyvällä paikalla
Hissi
Senaatin Notariaatti Oy LKV
Lämmittäjänkatu 4 A
FIN-00880 Helsinki
Tel:
Näytä puhelinnumero
+358 9 7745 100
