Vuokrataan toimistotilat - Helsinki
Kansakoulukatu 3, Kamppi, 00100 Helsinki #10839884
Vuokrataan vuonna 2022 täydellisesti saneeratusta kiinteistöstä avotoimistotilaa muutamilla huoneilla, huoneita voidaan rakentaa/purkaa tarpeen mukaan. Ota yhteyttä ja sovi esittely, vuokrauspalvelumme on tilanhakijoille maksuton.
Osoite
Kansakoulukatu 3, 00100 Helsinki
Tilatyyppi
Toimistotilaa
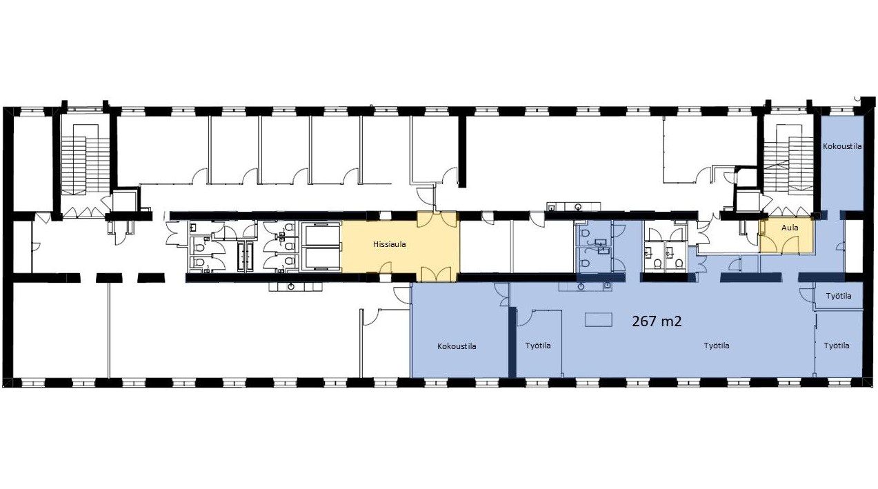
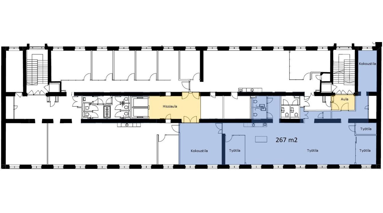
267 m2
Pohjapiirros
Kiinteistö
KOO3
Sijainti
Kamppi
Pysäköinti
Alemmassa kellarikerroksessa on 18 pysäköintipaikkaa. Lisää pysäköintitilaa on saatavana EuroParkin P-CityForum-pysäköintihallista, johon on jalankulkuyhteys Kansakoulukujalla vain 40 metrin päässä KOO3:n pääsisäänkäynnistä.
Pihalla ja kellarissa on pyöräpysäköinti. Kellarissa on lisäksi yhteiset sosiaaliset tilat ja saunat.
Pihalla ja kellarissa on pyöräpysäköinti. Kellarissa on lisäksi yhteiset sosiaaliset tilat ja saunat.
Palvelut
Sisäänkäynnin yhteydessä on vastaanottoaula, ylempi kellarikerros on suoraan sisäpihan alapuolella ja sen useat kattoikkunat tuovat tiloihin valoa, jossa löytyy neuvotteluhuoneita ja tapahtumatilaa.
Vapautuu
Heti
Kerros
3
Ota yhteyttä
Senaatin Notariaatti Oy LKV
Lämmittäjänkatu 4 A
FIN-00880 Helsinki
Tel:
Näytä puhelinnumero
+358 9 7745 100
Pyydä lisätietoa
