Vuokrataan toimistotilat - Helsinki
Työpajankatu 13, Kalasatama, 00580 Helsinki #10839873
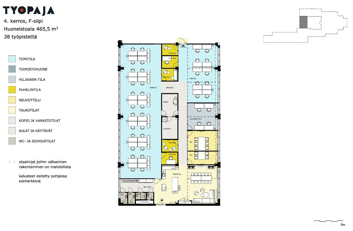
Tutustu moderniin ja monipuoliseen työympäristöön Kalasatamassa aivan Kauppakeskus Redin naapurissa. Avarat tilat, laadukkaat palvelut ja keskeinen sijainti tekevät tästä toimisto kohteesta poikkeuksellisen. Neuvottelutilat, kuntosali, ravintolapalvelut ja muut yhteistilat on suunniteltu tukemaan tehokasta ja viihtyisää työskentelyä. Erinomaiset liikenneyhteydet ja LEED Gold -sertifikaatti tekevät Työpajasta ensiluokkaisen valinnan.
Tiloja voidaan räätälöidä asiakkaiden tarpeiden mukaan.
Tiesitkö, että tilan hakijalle palvelumme on maksuton?
Ota yhteyttä ja kysy lisää!
www.blanctoimitilat.fi
Harri Laisto, Kaupanvahvistaja, LKV, Yrittäjä
+358 40 536 5590
harri.laisto@blanckiinteisto.com

Blanc Toimitilat
Harri Laisto
Toimitila-asiantuntija, CEO, Kaupanvahvistaja, LKV
Näytä puhelinnumero
+358405365590