Vuokrataan toimistotilat - Espoo
Keilaranta 6, Keilaranta, 02150 Espoo #10839834
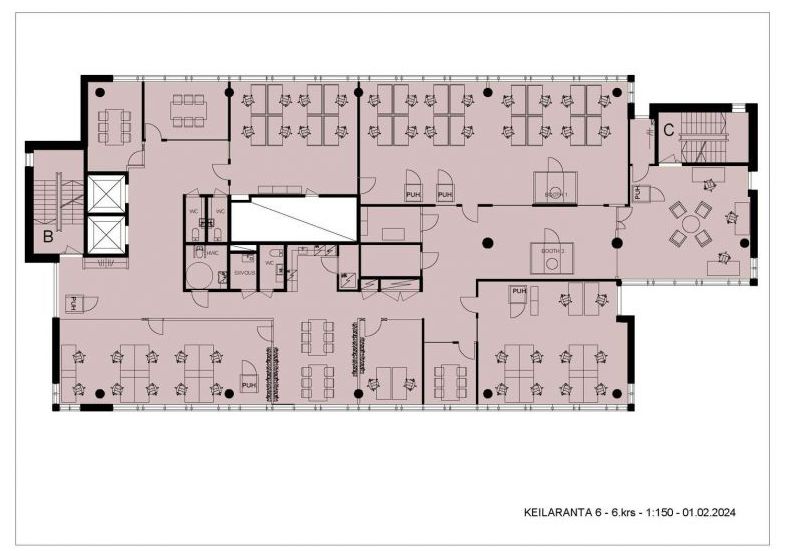
Vuokrataan valoisaa ja avaraa toimistotilaa Keilaniemestä kaikilla nykyajan teknisillä ominaisuuksilla. Tila käsittää avotilaa, neuvottelu-/tiimihuoneita sekä omat keittiö- ja wc-tilat. Tila on mahdollista jakaa kahdelle käyttäjälle 222m2 ja 378m2 tai 270m2 ja 330m2 kokoisiin osiin. Tilat modifioidaan käyttäjän tarpeet ja toiveet huomioiden. Ota yhteyttä ja sovi esittely, vuokrauspalvelumme on tilanhakijoille maksuton.
Osoite
Keilaranta 6, 02150 Espoo
Tilatyyppi
Toimistotilaa
222 - 600 m2
Tilajako
Jaettavissa
Jaettavissa 222m2 ja 378m2 tai 270m2 ja 330m2 kokoisiin osiin.
Pohjapiirros
Kiinteistö
Kiinteistöissä on tarjolla monipuoliset palvelut, kuten kuntosali ja kaksi lounasravintolaa. Nykyaikaiset aulapalvelut, toistakymmentä kokous- ja edustustilaa sekä yli 100:n hengen auditorio.
Sijainti
Keilaranta, Keilaniemi
Pysäköinti
Kiinteistössä on oma pysäköintihalli.
Vapautuu
Heti
Kerros
6
Jaettavissa
Ota yhteyttä
Senaatin Notariaatti Oy LKV
Lämmittäjänkatu 4 A
FIN-00880 Helsinki
Tel:
Näytä puhelinnumero
+358 9 7745 100
Pyydä lisätietoa
