Vuokrataan toimistotilat - Helsinki
Kaisaniemenkatu 1, Keskusta, 00100 Helsinki #10839819
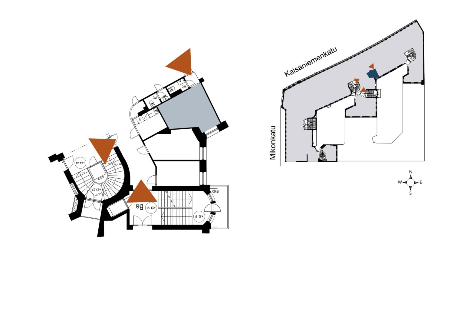
Kompakti, työ- tai vastaanottohuoneeksi soveltuva seitsemännen kerroksen 20,7 m² toimitila Kaisaniemenkadun ja Mikonkadun kulmassa.
Tilassa omat wc-tilat sekä pieni ikkuna josta pieni tila saa sopivasti luonnonvaloa.
Kellaritiloihin on äskettäin uusittu upeat suihku-/pukutilat. Lisäksi tiloihin on rakennettu tilavat ja turvalliset pyörien säilytysmahdollisuudet ja latausmahdollisuus sähköpyörille.
Katutasossa
Näkyvällä paikalla
Hissi
ScanReal Oy LKV
Opus Business Park
Hitsaajankatu 24
00810 Helsinki
info@scanreal.fi
Puh:
Näytä puhelinnumero
020 730 8830
Sopivat toimitilat yhdellä otolla!
Kartoitamme toimitilatarpeesi ja etsimme yrityksellesi parhaiten sopivat vapaat toimitilat. Koska vuokranantajat maksavat palvelumme, on tämä yrityksellesi veloituksetonta.
OTA YHTEYTTÄ - SOVI NÄYTTÖ!
Kaikki kohteemme eivät ole netissä, kerro tilatarpeesi niin kartoitamme vaihtoehdot.
Palvelumme on tilanhakijalle ilmainen
