Vuokrataan toimistotilat, varastotilat - Espoo
Kiilaniityntie 10, Koskelo, 02920 Espoo #10839674
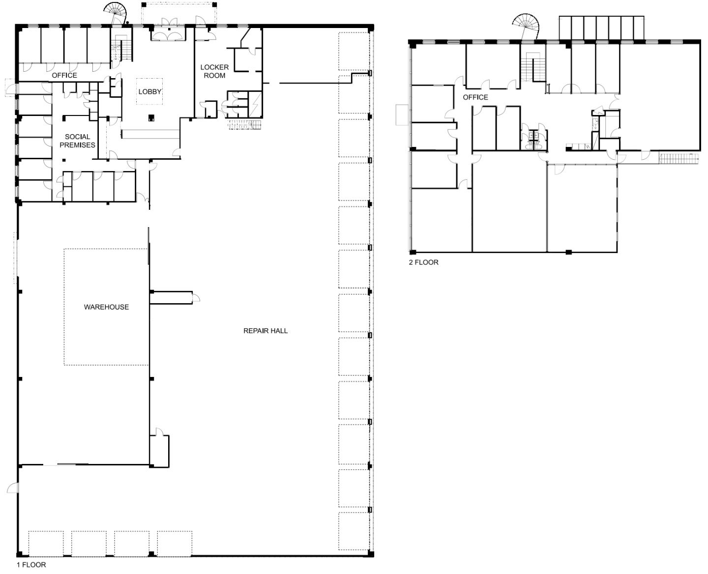
Erinomaiset toimitilat raskaan kaluston huollolle. Tarjolla siistiä ja kauttaaltaan remontoitua toimitilaa, jonka korkeus on pääosin 6m. Vaikuttavat 17 kpl nosto-ovia. Lisäksi toimisto- ja sosiaalitilaa 542,5 m2.
Osoite
Kiilaniityntie 10, 02920 Espoo
Tilatyyppi
Toimistotilaa
542,5 m2
Varastotilaa
2312,5 m2
Yhteensä
2855 m2
Tilajako
Lisäksi pihatilaa vuokrattavana 2.250 m2.
Kiinteistö
Tarjolla on yhteensä 2855 m2:n toimitila, jossa on 542,5 m2:n toimisto- ja sosiaalitilat kiinteistön 2.kerroksessa. Tilan korkeus on pääosin 6m, joka mahdollistaa korkeankin kaluston tehokkaan huollon tai varastoinnin.
Tilassa on vaikuttavat 17 kpl nosto-ovia, jotka takaavat erinomaisen logistisen toimivuuden. Lisäksi käytössä on erillinen pesuhalli, joka lisää sujuvuutta ja joustavuutta.
Vuokrattavana on lisäksi reilusti pihatilaa 2.250m2, joten suurenkin kaluston liikuttelu on helppoa. Yhteensä tontti on noin 18.000 m2.
Tilassa on vaikuttavat 17 kpl nosto-ovia, jotka takaavat erinomaisen logistisen toimivuuden. Lisäksi käytössä on erillinen pesuhalli, joka lisää sujuvuutta ja joustavuutta.
Vuokrattavana on lisäksi reilusti pihatilaa 2.250m2, joten suurenkin kaluston liikuttelu on helppoa. Yhteensä tontti on noin 18.000 m2.
Sijainti
Kohteen sijainti Koskelossa, aivan Kehä III:n kyljessä on huippuluokkaa, sillä kohteelle ajaa Kehä III:lta parissa minuutissa.
Pysäköinti
Tontti on kooltaan n. 18.000 m2, joka mahdollistaa merkittävän määrän parkkipaikkoja suuremmillekin ajoneuvoille.
Palvelut
Lähellä on erilaisia teknisen alan toimijoita ja ajoneuvoihin liittyviä palveluita.
Kulkuyhteydet
Kehä III:lta ajaa kohteella parissa minuutissa. Bussipysäkille on matkaa 280m.
Muuta
Kysy rohkeasti lisää!
Vapautuu
Vapautumassa
Katutasossa
Ota yhteyttä
MAP Tilat Oy
Maarit Helander
Näytä puhelinnumero
044 593 8661
maarit.helander@maptilat.fi
Mika Hermaala
Näytä puhelinnumero
040 192 1313
mika.hermaala@maptilat.fi
Energiakuja 3, 00180 Helsinki
Pyydä lisätietoa
