Vuokrataan toimistotilat - Helsinki
Elimäenkatu 9, Vallila, 00150 Helsinki #10839672
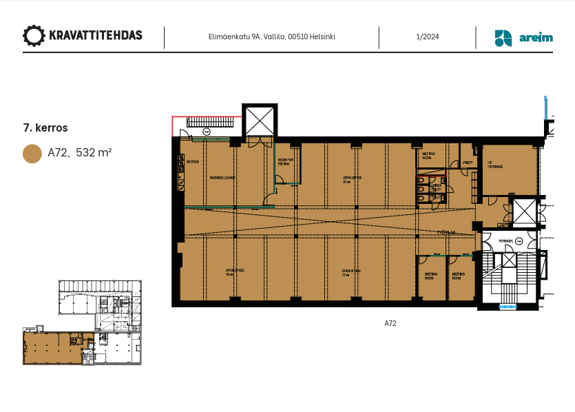
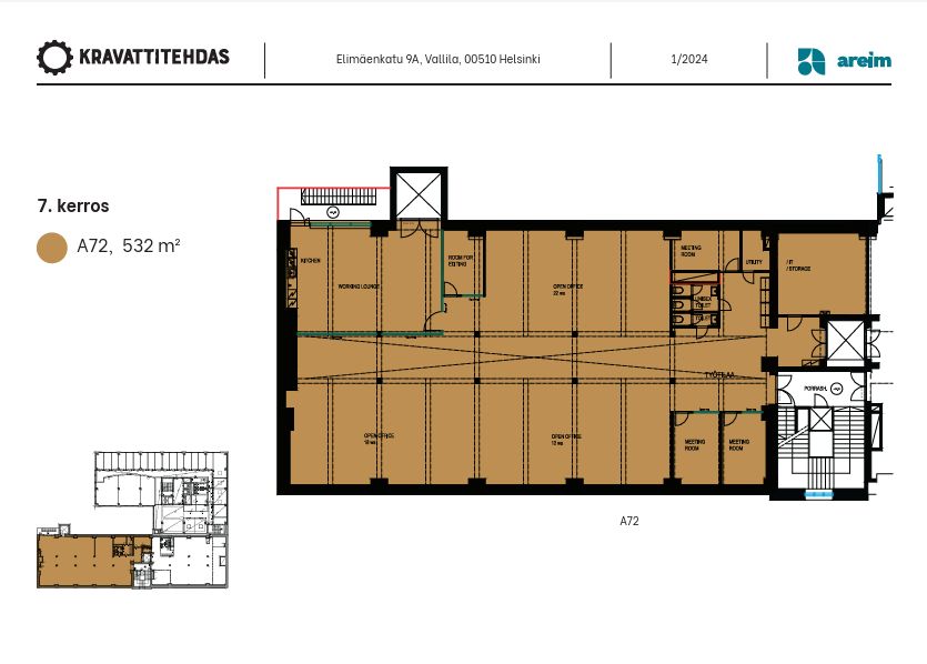
Tämä Kravattitehtaaksi 1920-luvulla rakennettu kiinteistö soveltuu tiloiltaan moneen eri käyttöön ja lähes satavuotisen historian havina tuo tiloihin kiehtovaa omintakeisuutta ja mielikuvitusta ruokkivia nyansseja. Kiinteistö on nyt uudistettu arvokasta historiaa kunnioittaen ja nostalgiset puitteet ovat omiaan esimerkiksi luovan työn ympäristöksi – tilaratkaisut tukevat moderneja ja yhteisöllisiä työnteon malleja. Isot ristikkoikkunat antavat tiloihin runsaasti luonnonvaloa, ullakkokerroksen kattoa koristavat hurmaavat kaaripalkit. Kravattitehtaassa on myös aulapalvelu ja lisäksi siellä on useita eri kokoisia neuvottelutiloja vuokralaisten käytössä, isoimpana 80 hengen auditorio. HUOM! Kuvat ovat havainnekuvia kiinteistön yleisestä tasosta, tämä tila sijaitsee kiinteistössä Elimäenkatu 9 A. Ota yhteyttä ja sovi esittely, vuokrauspalvelumme on tilanhakijoille maksuton.
Hissi
Senaatin Notariaatti Oy LKV
Lämmittäjänkatu 4 A
FIN-00880 Helsinki
Tel:
Näytä puhelinnumero
+358 9 7745 100
