Vuokrataan toimistotilat - Helsinki
Annankatu 25, Keskusta, Keskusta, 00100 Helsinki #10839605
Osoite
Annankatu 25, Keskusta, 00100 Helsinki
Tilatyyppi
Toimistotilaa
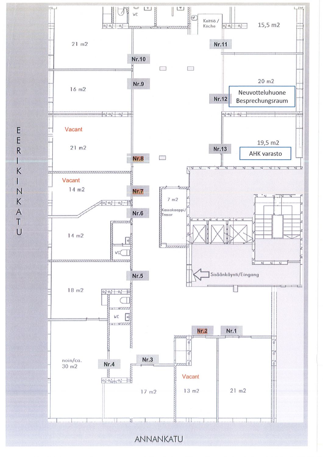
14 m2
Kiinteistö
Vuokrataan Kampin keskuksen läheisyydestä kiinteistön 3. kerroksen pientoimistotila 14 m² (huone 7). Vuokralaisten yhteiskäytössä on wc- keittiötila sekä kalustettu neuvotteluhuone. Huoneessa data- ja puhelinkaapelointi.
Vapautuu
Heti
Energiatehokkuusluokka
Ei lain edellyttämää energiatodistusta
Hissi
Ota yhteyttä
Comreal Oy LKV
Tuula Leikas
Näytä puhelinnumero
040 531 3722
P.
Näytä puhelinnumero
020 744 1000
Läkkisepänkuja 6, 00620 Helsinki
Comreal Oy on kasvava ja osaava kiinteistöalan palveluntuottaja kiinteistöjen omistajille ja käyttäjille.
Kiinteistö on sijoittajalle hyvä sijoitus vain, jos siellä on tyytyväiset asiakkaat, eli vuokralaiset. Siksi laadukas asiakaspalvelu on toiminnan lähtökohta.
Pyydä lisätietoa
