Vuokrataan toimistotilat - Oulu
Isokatu 32, 90100 Oulu #10839580
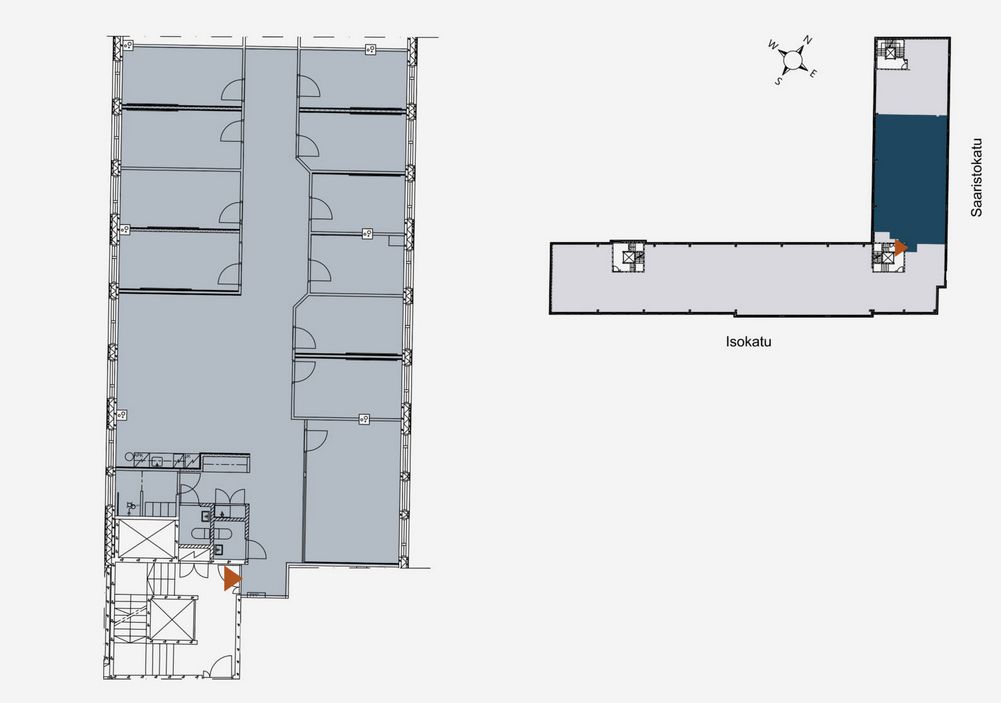
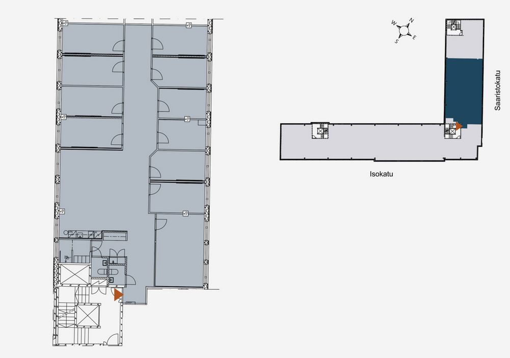
Vuokrataan 4. kerroksen 222 m2 toimistotila Oulun keskustasta.
Isokatu 32 on keskustassa sijaitseva toimisto- ja liikerakennus, jossa on hyvin paikoitustilaa niin omalla väelle kuin vieraillekin. Toimiston välittömästä läheisyydestä löytyy runsaasti ravintoloita, ruoka- ja päivittäistavarakauppoja sekä muita palveluita.
Lisätietoja 020 7290 710. Lisää kohteita www.premises.fi
Energialuokka D2013.Kerros: 4
Osoite
Isokatu 32, 90100 Oulu
Tilatyyppi
Toimistotilaa
222 m2
Ota yhteyttä
CRE PREMISES
Puh. Näytä puhelinnumero 020 7290 710
Vantaankoskentie 14
01670 VANTAA
Pyydä lisätietoa
