Vuokrataan toimistotilat - Helsinki
Salomonkatu 17, Kamppi, 00100 Helsinki #10839578
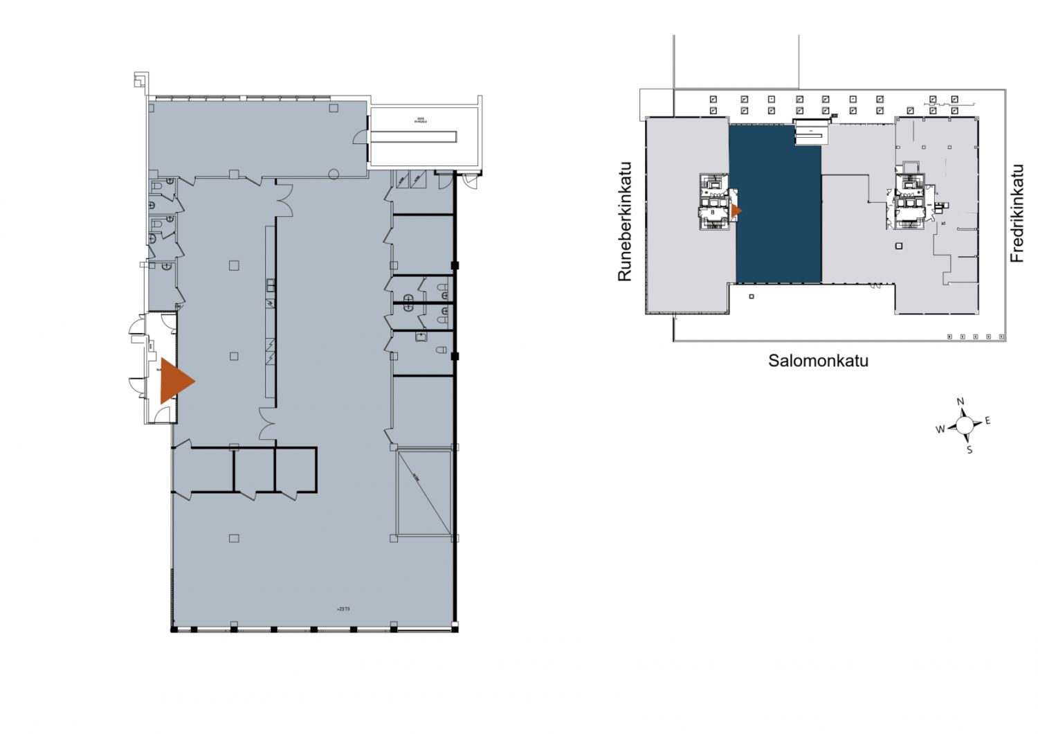
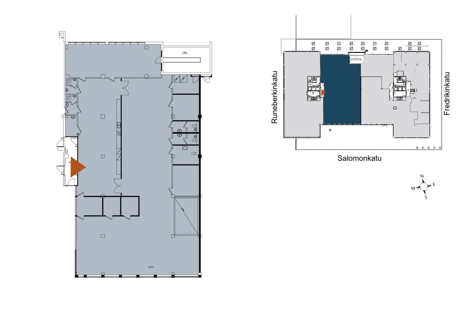
Vuokrataan upea monitilatoimisto B tornissa.
Kiinteistö sijaitsee Kampin kauppakeskuksen vieressä, jonne on erinomaiset kulkuyhteydet julkisilla kulkuneuvoilla. Kiinteistössä parkkihalli autoilijoille, ja pyöräparkki sekä suihkut pyräilijöille.
Lisätietoja 020 7290 710. Lisää kohteita osoitteessa www.premises.fi.
Energialuokka E2013Kerros: 3
Osoite
Salomonkatu 17, 00100 Helsinki
Tilatyyppi
Toimistotilaa
534 m2
Kulkuyhteydet
Loistavat kulkuyhteydet. Metro- ja linja-autoaseman välittömässä läheisyydessä. Junalle n. 5 min kävelymatka. Autopaikkoja voi vuokrata kiinteistön autohallista.
Ota yhteyttä
CRE PREMISES
Puh. Näytä puhelinnumero 020 7290 710
Vantaankoskentie 14
01670 VANTAA
Pyydä lisätietoa
