Vuokrataan toimistotilat - Helsinki
Lapinlahdenkatu 1 A, Keskusta, 00180 Helsinki #10839476
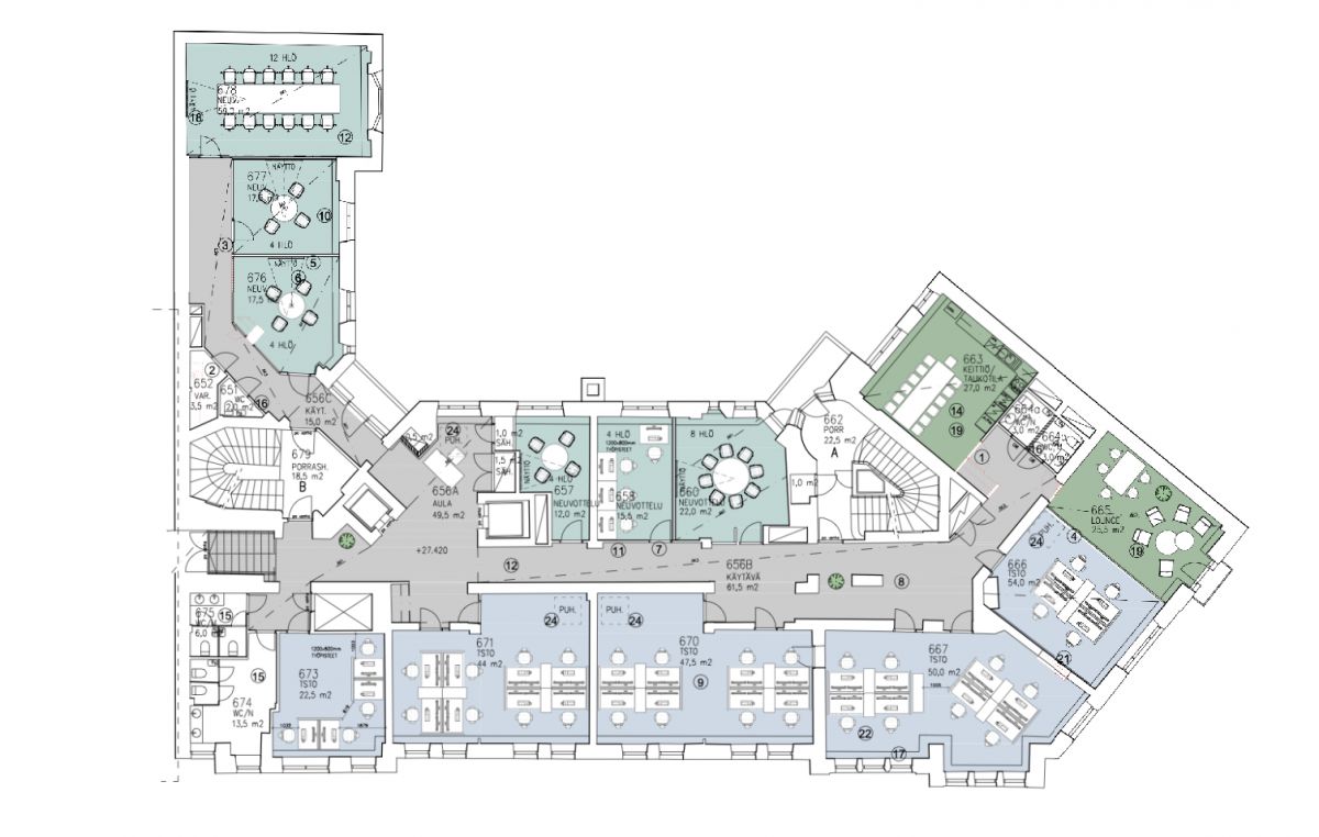
Vuokrataan valoisa jugendtyylinen toimisto, joka kattaa kokonaisen oman kerroksen. Toimisto sisältää useita eri kokoisia huoneita, joten tila on helppo jakaa erilaisiin käyttötarkoituksiin ja eri kokoisille tiimeille. Tilassa on reilun kokoinen taukokeittiö, omat wc:t ja hissiaula. Kuudennen kerroksen maisemat avautuvat Lapinlahdenpuistikkoon. Hauskana yksityiskohtana vihreä alkuperäinen kakluuni yhden työtilan yhteydessä. Käytävillä ja yhteistiloissa on arvokas koriparketti.
Tyylikäs 1907 vuoden Selim A. Lindqvistin suunnittelema pääkonttoritasoinen kiinteistö sijaitsee erinomaisella paikalla Helsingin Kampissa, Telkän korttelissa. Jugendrakennuksessa on korkeat huoneet, avotoimistotilaa ja moderni jäähdytys. Talon monipuoliset palvelut kuten aulapalvelu, oma lounasravintola, erikseen vuokrattavat kokoustilat ja auditorio, kuntosali, parkkihalli ja pyöräpaikat ovat yrityksesi tukena. Kiinteistöstä on suora hissiyhteys Kampin luolastoihin, joista pääsy mm. Kampin kauppakeskukseen, rautatieasemalle, Forumiin ja Stockmannille. Rakennuksella on BREEAM in-use -ympäristösertifikaatti arvosanalla Very Good.
Lisätietoja soita 020 730 4530 tai info@repoint.fi. Palvelumme on tilanhakijalle ilmainen.
Repoint Toimitilat Oy
Itälahdenkatu 22 B, 00210 Helsinki
Näytä puhelinnumero
020 730 4530
Lisätietoja soita Näytä puhelinnumero 020 730 4530 tai info@repoint.fi
https://repoint.fi/