Vuokrataan toimistotilat - Helsinki
Paasivuorenkatu 3, Siltasaari, 00530 Helsinki #10839472
Edustava 6. kerroksen toimistotila Siltasaaressa. Kokonaisuus käsittää sekä huonetoimistoa että avotilaa. Jäähdytetty ilmanvaihto, nopea tietoliikenne. Erinomaiset liikenneyhteydet Hakaniementorilta. Ota yhteyttä ja sovi esittely, vuokrauspalvelumme on tilanhakijoille maksuton.
Osoite
Paasivuorenkatu 3, 00530 Helsinki
Tilatyyppi
Toimistotilaa
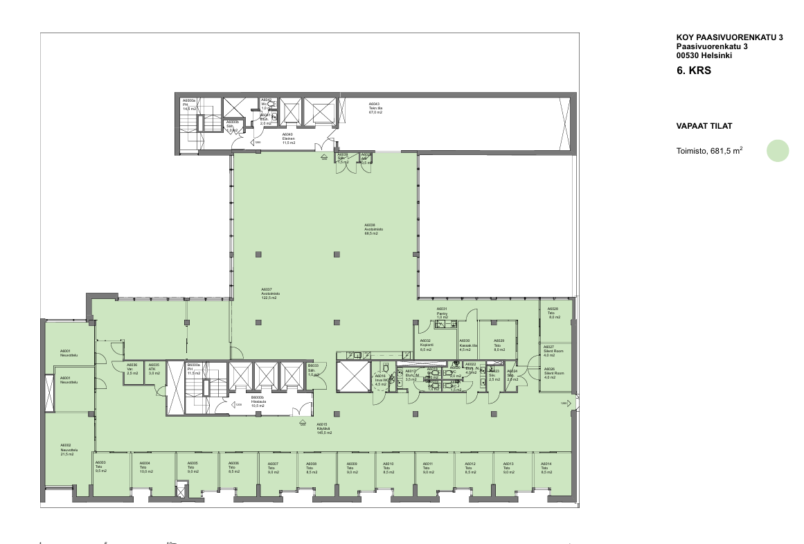
680 m2
Pohjapiirros
Kiinteistö
Jylhän tyylikäs toimitilakiinteistö hyvällä paikalla Helsingin Hakaniemessä. Toimitilan koko on 680 m².
Talo on peruskorjattu vuonna 2011 sen alkuperäistä tunnelmaa kunnioittaen. Esimerkiksi rakennuksen pankkisalin ja pääporrashuoneen luonnonkivilaatoitus ja jyhkeä tyyli on säilytetty tähän päivään. Kiinteistössä palvelee edustava tilaussauna, ja sisäpihalla on viihtyisä talvipuutarha. Ikkunanäkymät tiloista avautuvat Paasivuorenpuistikkoon.
Talo on peruskorjattu vuonna 2011 sen alkuperäistä tunnelmaa kunnioittaen. Esimerkiksi rakennuksen pankkisalin ja pääporrashuoneen luonnonkivilaatoitus ja jyhkeä tyyli on säilytetty tähän päivään. Kiinteistössä palvelee edustava tilaussauna, ja sisäpihalla on viihtyisä talvipuutarha. Ikkunanäkymät tiloista avautuvat Paasivuorenpuistikkoon.
Sijainti
Siltasaari
Pysäköinti
Autohalli
Kulkuyhteydet
Metro, bussit ja ratikat.
Vapautuu
Heti
Kerros
6 / 7
Energiatehokkuusluokka
Ei lain edellyttämää energiatodistusta
Näkyvällä paikalla
Hissi
Ota yhteyttä
Senaatin Notariaatti Oy LKV
Lämmittäjänkatu 4 A
FIN-00880 Helsinki
Tel:
Näytä puhelinnumero
+358 9 7745 100
Pyydä lisätietoa
