Vuokrataan toimistotilat - Helsinki
Mannerheimintie 4, Keskusta (Helsinki), 00100 Helsinki #10839439
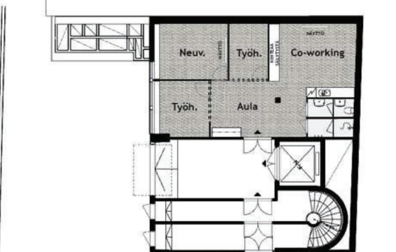
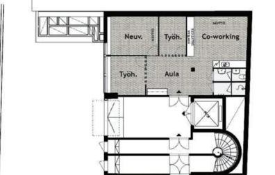
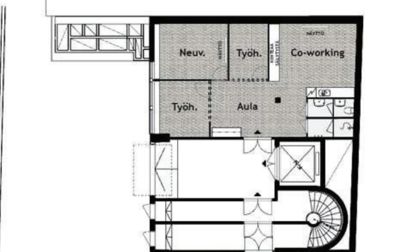
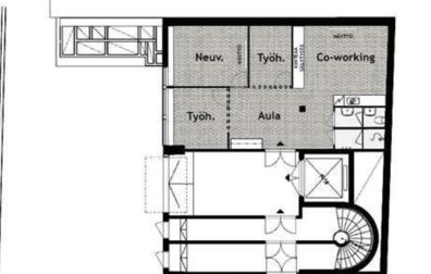
Nyt vuokrattavissa modernit toimitilat Helsingin ykköspaikalta. Tiloista löytyy sekä avotilaa että erillinen neuvottelutila.
Mannerheimintie 4 sijaitsee Helsingin ydinkeskustassa, erinomaisten julkisen liikenteen yhteyksien varrella. Raitiovaunu- ja bussipysäkit ovat lähes rakennuksen edessä, ja päärautatieasema sekä metroasema ovat vain muutaman minuutin kävelymatkan päässä. Alue tarjoaa monipuoliset palvelut ravintoloista ja kahviloista hotelleihin ja liikkeisiin, ja näkyvä sijainti vilkkaalla Mannerheimintiellä tekee toimitilasta helposti saavutettavan niin työntekijöille kuin asiakkaillekin.
Me Croisettella autamme teitä löytämään teille parhaat tilat! Olemme puolueettomia asiantuntijoita ja tunnemme toimitilamarkkinat, talot sekä tilat vankalla kokemuksella. Meillä on välityksessä kaikki toimitilat ja tiedämme niiden alustavat vuokratasot.
Tehtävämme on tehdä toimitilahaustanne onnistunutta ja helppoa. Saamme palkkiomme kiinteistönomistajalta, joten sinulle palvelumme on täysin maksuton. Jos kiinnostuit, ota yhteyttä sähköpostitse osoitteeseen vuokraus@croisette.fi tai soita numeroon +358 4 00585857.
Croisette Real Estate Partner
Erottajankatu 5 A 6, 00130 Helsinki
Näytä puhelinnumero
+358 400 585 857
Croisette Vuokraus
Näytä puhelinnumero
+358400585857
