Vuokrataan toimistotilat, tuotantotilat, varastotilat - Hyvinkää
Kerkkolankatu 17, 05800 Hyvinkää #10839431
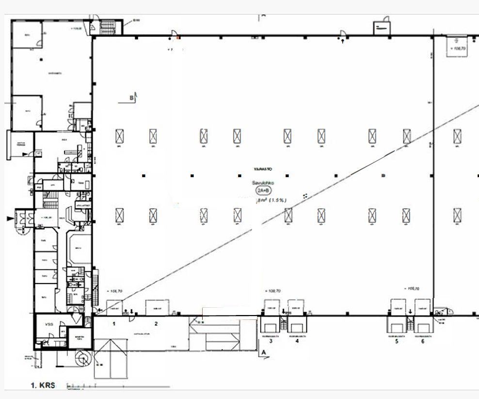
Vuokrataan varasto- ja toimistotilaa yhteensä 2630m2, Hyvinkään, Sahanmäen teollisuusalueelta. Varastoa on vuokrattavissa 2130m2. Voidaan vuokrata myös osa varastosta ja osa toimistosta. Varaston toisessa päässä on katutason toimistoa vuokrattavissa 300/500m2. Toimisto koostuu sekä huoneista, että avotilasta. Toimistotilat ovat jäähdytettyjä.
Varaston vapaa korkeus on n. 7 m. Hyvät katetut lastauslaiturit, jossa katon korkeus 440cm ja lisäksi lastaustaskuja. Pihatilaa on runsaasti myös yhdistelmäajoneuvoa ajatellen. Tarvittaessa saadaan tehtyä myös sisäänajoyhteys. Lastauspiha on aidattu ja lukittu. Tila voidaan tarvittaessa jakaa pienempiin osiin. Lattiaperustus on 20cm maanvarainen laatta, joten kantavuus on hyvä.
Lisätiedot ja kohde-esittelyt 050 415 2127. Lisää kohteita www.premises.fi
Kohteella ei ole lain edellyttämää energiatodistusta.Kerros: 1
CRE PREMISES
Puh. Näytä puhelinnumero 020 7290 710
Vantaankoskentie 14
01670 VANTAA
