Uudiskohde
Vuokrataan/myydään/sijoituskohde toimistotilat, liiketilat, tuotantotilat, varastotilat - Sipoo
Kiinteistö Oy TT Toimitilat Työpaikkatie 12, Työpaikkatie 12, 01150 Sipoo #10839307
Uusi kohde ennakkomarkkinoinnissa. Hyvällä sijainnilla Porvoonväylän varressa, vain 10min Kehä 3:lle!
Osoite
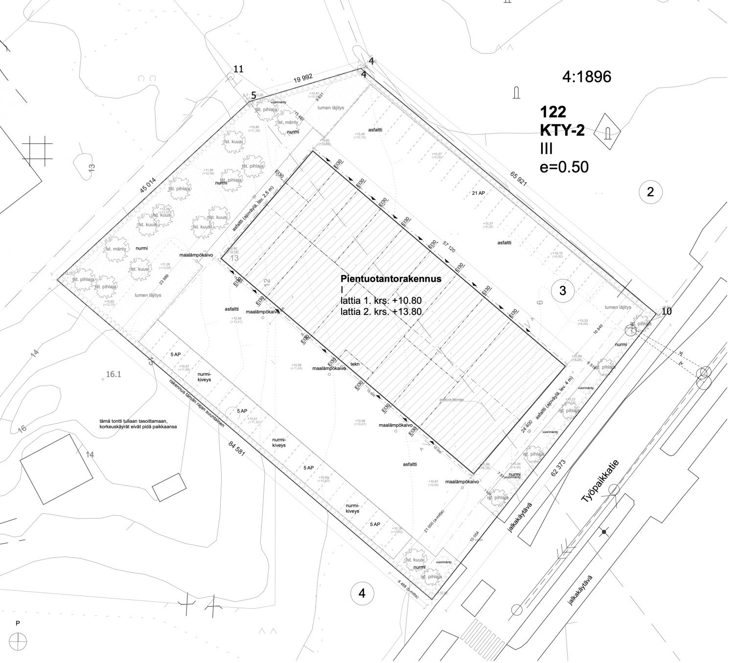
Työpaikkatie 12, 01150 Sipoo
Tilatyyppi
Toimistotilaa
100 - 1000 m2
Liiketilaa
100 m2
Tuotantotilaa
50 - 1500 m2
Varastotilaa
200 - 1000 m2
Yhteensä
450 - 3600 m2
Tilajako
Jaettavissa
Tilat ovat suunniteltavissa juuri tarpeidenne mukaisiksi.
Pohjapiirros
Tila soveltuu
Ravintola, kahvila, studio/ateljé, koulutus, autokorjaamo, parturi- ja kampaamo, bändikämppä, tulityötila, elintarviketila, puhdastila
Kiinteistö
Toimitilat yrittäjälle ja sijoittajalle!
Nykyaikaiset ja energiatehokkaat tilat
• Energialuokka A
• Maalämpö
• Vesikiertoinen lattialämmitys
• LED-valaistus
• Yhtiövastike vain 1,4€/osake
• Oma tontti
• Lämmityskulut vain n. 0,4€/m2
• Monikäyttöistä 5-6m korkeaa tilaa
• Apua ja tuki aina lähellä
• Oven etäavaus ja kamerakuva tilaan
Nykyaikaiset ja energiatehokkaat tilat
• Energialuokka A
• Maalämpö
• Vesikiertoinen lattialämmitys
• LED-valaistus
• Yhtiövastike vain 1,4€/osake
• Oma tontti
• Lämmityskulut vain n. 0,4€/m2
• Monikäyttöistä 5-6m korkeaa tilaa
• Apua ja tuki aina lähellä
• Oven etäavaus ja kamerakuva tilaan
Sijainti
Sipoonlahden liikealueella! Kehä 3:lle vain 10min!
Muuta
Ota yhteyttä ja sovi esittely mahdollisimman pian! Tähän kohteeseen on mahdollista suunnitella juuri sinun tarpeeseen sopivat tila!
Kohteessa olevat kuvamateriaalit ovat esimerkkiluontoisia ja lopullisia suunnitelmia tehdään vuokralaisen / ostajan tarpeen mukaan.
Kohteessa olevat kuvamateriaalit ovat esimerkkiluontoisia ja lopullisia suunnitelmia tehdään vuokralaisen / ostajan tarpeen mukaan.
Vapautuu
H2 / 2026
Rakennusvuosi
2025 (uudiskohde)
Kerros
1 / 1
Energiatehokkuusluokka
A2018
Uudiskohde
Katutasossa
Näkyvällä paikalla
Jaettavissa
Ota yhteyttä
TT Toimitilat
Carlo Salo
Myyntijohtaja
Näytä puhelinnumero
040 125 3530
Mikko Ahonen
Myyntipäällikkö
Näytä puhelinnumero
0442394697
Pyydä lisätietoa
