Vuokrataan liiketilat - Helsinki
Fabianinkatu 29, Keskusta, 00100 Helsinki #10839262
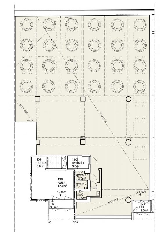
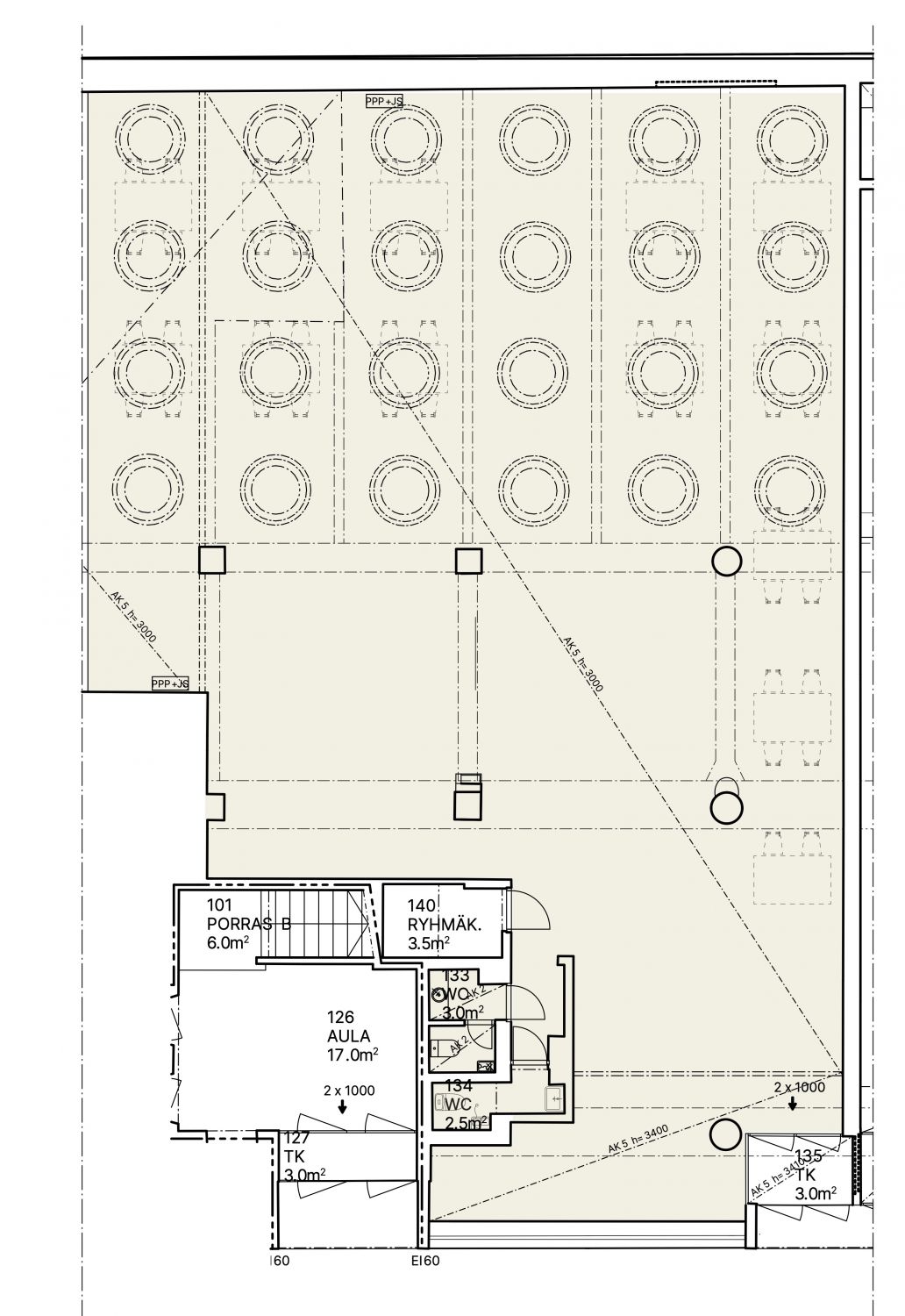
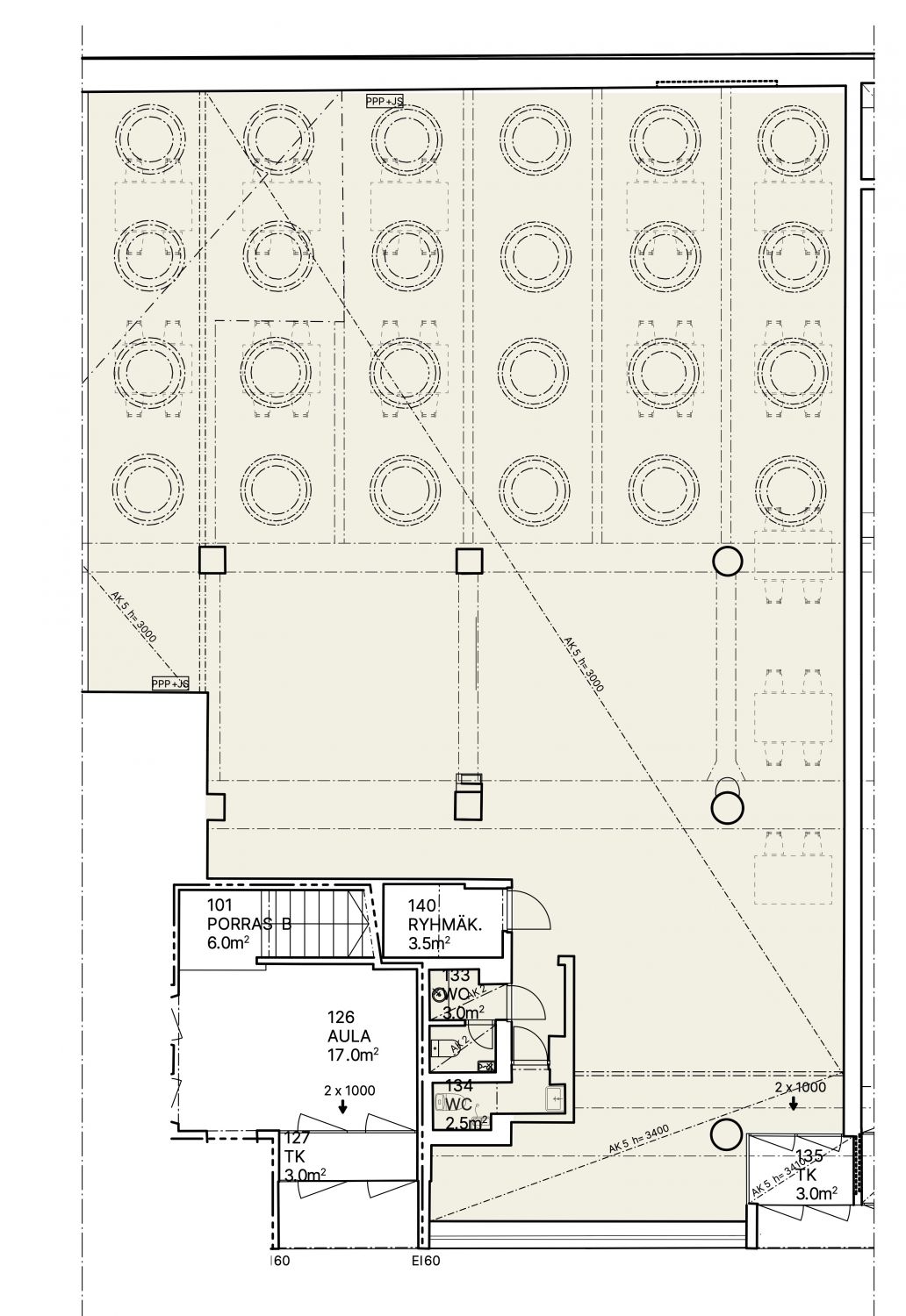
Ensimmäisen kerroksen 266,5 m² liiketila Helsingin ydinkeskustasta.
Osoite
Fabianinkatu 29, 00100 Helsinki
Tilatyyppi
Liiketilaa
266,5 m2
Pohjapiirros
Kiinteistö
Liiketila sijaitsee Fabianinkadulla Senaatintorin laidalla, Esplanadin puiston välittömässä läheisyydessä.
Vilkkaan Aleksanterinkadun ja tunnelmallisen Esplanadin puiston välissä sijaitsevalla kiinteistöllä on tärkeä kaupunkikuvallinen asema ja kulttuurihistoriallista merkitystä suunnittelijansa vuoksi. Julkisivuratkaisultaan Alvar Aallolle tyypillisessä kiinteistössä yksityiskohdat ovat ainutlaatuisia ja hyvin suunniteltuja. Rakentamisessa on käytetty laadukkaita materiaaleja – rakennuksessa on jäljellä alkuperäisiä kiinteitä sisustuksia.
Kluuvin parkkihalli sijaitsee aivan kiinteistön vieressä, ja raitiovaunu-, bussi- ja metropysäkit ovat muutaman askeleen päässä.
Vilkkaan Aleksanterinkadun ja tunnelmallisen Esplanadin puiston välissä sijaitsevalla kiinteistöllä on tärkeä kaupunkikuvallinen asema ja kulttuurihistoriallista merkitystä suunnittelijansa vuoksi. Julkisivuratkaisultaan Alvar Aallolle tyypillisessä kiinteistössä yksityiskohdat ovat ainutlaatuisia ja hyvin suunniteltuja. Rakentamisessa on käytetty laadukkaita materiaaleja – rakennuksessa on jäljellä alkuperäisiä kiinteitä sisustuksia.
Kluuvin parkkihalli sijaitsee aivan kiinteistön vieressä, ja raitiovaunu-, bussi- ja metropysäkit ovat muutaman askeleen päässä.
Vapautuu
Heti
Rakennusvuosi
1964
Saneerausvuosi
2000
Kerros
1 / 8
Energiatehokkuusluokka
Ei lain edellyttämää energiatodistusta
Katutasossa
Näkyvällä paikalla
Ota yhteyttä
ScanReal Oy LKV
Opus Business Park
Hitsaajankatu 24
00810 Helsinki
info@scanreal.fi
Puh:
Näytä puhelinnumero
020 730 8830
Sopivat toimitilat yhdellä otolla!
Kartoitamme toimitilatarpeesi ja etsimme yrityksellesi parhaiten sopivat vapaat toimitilat. Koska vuokranantajat maksavat palvelumme, on tämä yrityksellesi veloituksetonta.
OTA YHTEYTTÄ - SOVI NÄYTTÖ!
Kaikki kohteemme eivät ole netissä, kerro tilatarpeesi niin kartoitamme vaihtoehdot.
Palvelumme on tilanhakijalle ilmainen
Pyydä lisätietoa
