Vuokrataan toimistotilat - Helsinki
Fredrikinkatu 47, Keskusta, 00100 Helsinki #10839260
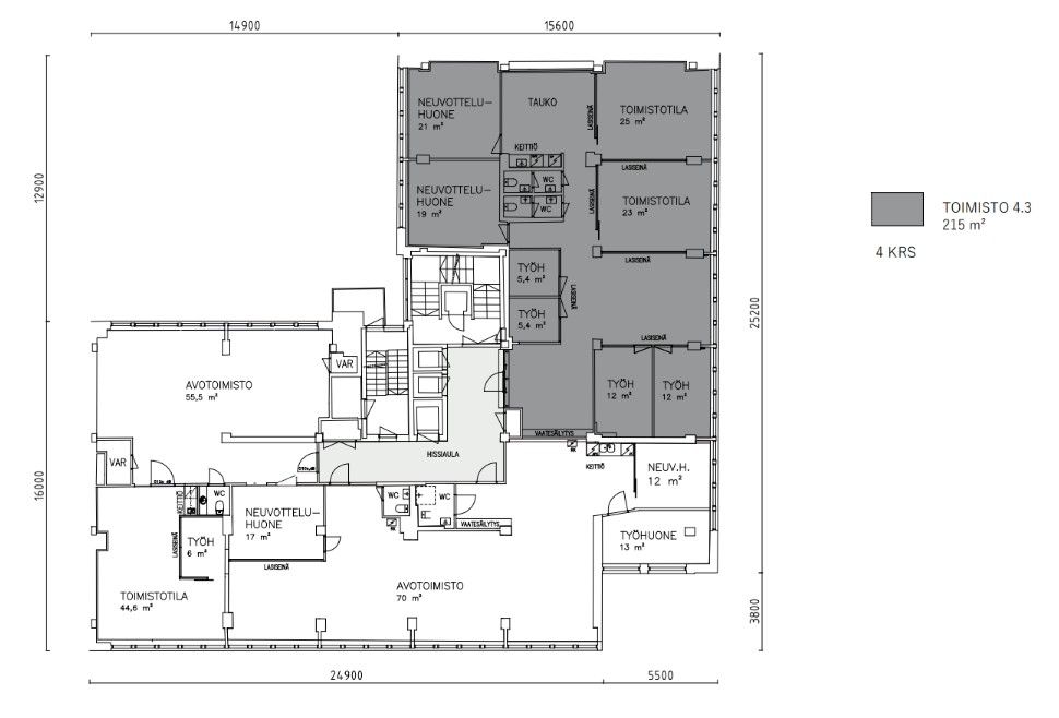
Vuokrataan toimisto Fredrikinkadulta Kampista. Tila koostuu kuudesta työhuoneesta, kahdesta neuvotteluhuoneesta ja keittiöstä. Lisäksi 2 vetäytymistilaa ja 2 wc:tä.
Huippusijainti Kampissa, 6 minuutin kävely Kampin metroasemalle. Kampin kauppakeskuksen kattavat palvelut ja lounaspaikat lähellä. Pysäköintipaikkoja vuokrattavissa Kampin ja Forumin pysäköintilaitoksista.
Lisätietoja soita 020 730 4530 tai info@repoint.fi. Palvelumme on tilanhakijalle ilmainen.
Repoint Toimitilat Oy
Itälahdenkatu 22 B, 00210 Helsinki
Näytä puhelinnumero
020 730 4530
Lisätietoja soita Näytä puhelinnumero 020 730 4530 tai info@repoint.fi
https://repoint.fi/