Vuokrataan toimistotilat - Helsinki
Fredrikinkatu 47, Keskusta, 00100 Helsinki #10839202
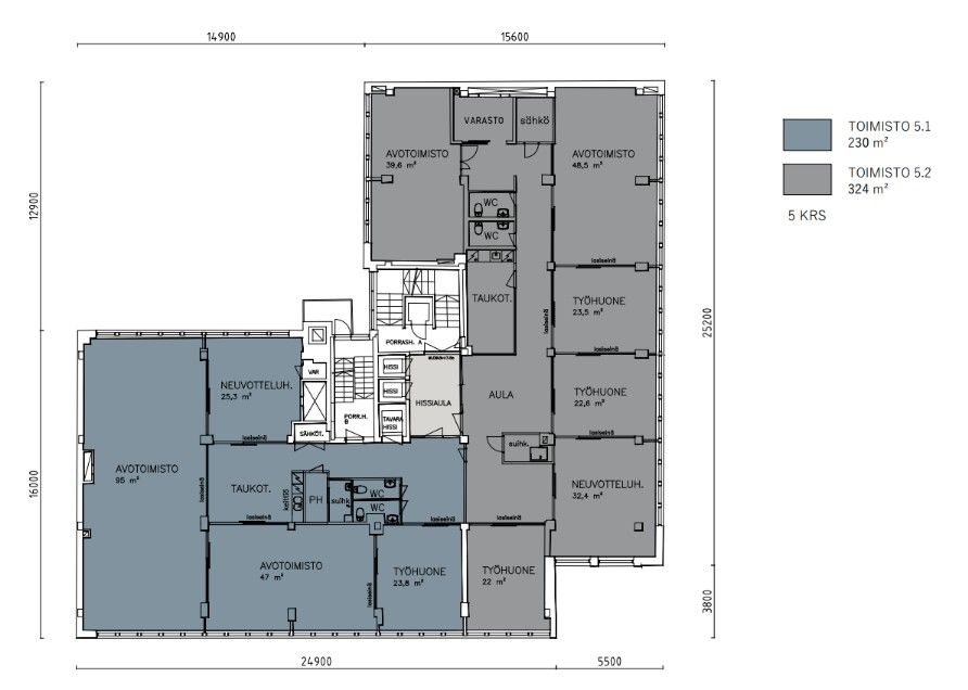
Vuokrataan toimisto Fredrikinkadulta Kampista. Tila koostuu kahdesta isosta tiimihuoneesta, neuvotteluhuoneesta, kahdesta työhuoneesta ja keittiöstä. Lisäksi 2 wc:tä, oma suihkutila ja pieni varastohuone. Tila voidaan tarvittaessa yhdistää viereisen 230m2 toimiston kanssa, jolloin kokonaisuus on yhteensä n. 550m2.
Huippusijainti Kampissa, 6 minuutin kävely Kampin metroasemalle. Kampin kauppakeskuksen kattavat palvelut ja lounaspaikat lähellä. Pysäköintipaikkoja vuokrattavissa Kampin ja Forumin pysäköintilaitoksista.
Lisätietoja soita 020 730 4530 tai info@repoint.fi. Palvelumme on tilanhakijalle ilmainen.
Repoint Toimitilat Oy
Itälahdenkatu 22 B, 00210 Helsinki
Näytä puhelinnumero
020 730 4530
Lisätietoja soita Näytä puhelinnumero 020 730 4530 tai info@repoint.fi
https://repoint.fi/