Vuokrataan toimistotilat, varastotilat - Vantaa
Ansatie 4, Aviapolis, 01740 Vantaa #10839074
11,7m Korkeaa modernia varastotilaa 2686 m2 loistavien kulkuyhteyksien varrella.
Osoite
Ansatie 4, 01740 Vantaa
Tilatyyppi
Toimistotilaa
65,5 m2
Varastotilaa
2555,5 m2
Yhteensä
2686,5 m2
Kiinteistö
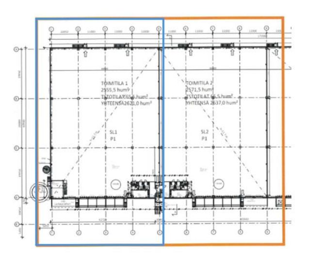
Ansatie 4:ssä sijaitsee tilava varastotila, joka on täydellinen ratkaisu logistiikan, varastoinnin ja teollisuuden tarpeisiin. Tämä 2686,5 m²:n varasto tarjoaa runsaasti tilaa liiketoimintasi kasvulle ja kehitykselle. Sijainti on erinomainen, sillä se on lähellä Helsinki-Vantaan lentokenttää ja Kehä III:sta, mikä takaa sujuvat kulkuyhteydet niin pääkaupunkiseudulle kuin muualle Suomeen.
Tila tarjoaa selkeän pohjaratkaisun, joka jakautuu 2555,5 m2 varastotilaan sekä 65,5 m2 parvitoimistoon ja sosiaalitiloihin 65,5m2. Vuokralaisella on käytössään jopa 5 kappaletta lastaustaskuja, joka mahdollistaa sujuvan logistiikan. Tilan yhteydessä on mahdollisuus vuokrata myös toimistoratkaisuja.
Tilan vapaakorkeus on reilu 11,7m ja lattiankantavuus 5000 - 6000 kg/m2
Alueella on hyvät palvelut, kuten lounasravintoloita ja erikoistarvikekauppoja, joten kaikki tarvittava löytyy läheltä. Tämä varasto tarjoaa mahdollisuuden sijoittua alueelle, joka on tunnettu vilkkaasta kaupallisesta toiminnastaan ja erinomaisista logistisista yhteyksistään.
Tila tarjoaa selkeän pohjaratkaisun, joka jakautuu 2555,5 m2 varastotilaan sekä 65,5 m2 parvitoimistoon ja sosiaalitiloihin 65,5m2. Vuokralaisella on käytössään jopa 5 kappaletta lastaustaskuja, joka mahdollistaa sujuvan logistiikan. Tilan yhteydessä on mahdollisuus vuokrata myös toimistoratkaisuja.
Tilan vapaakorkeus on reilu 11,7m ja lattiankantavuus 5000 - 6000 kg/m2
Alueella on hyvät palvelut, kuten lounasravintoloita ja erikoistarvikekauppoja, joten kaikki tarvittava löytyy läheltä. Tämä varasto tarjoaa mahdollisuuden sijoittua alueelle, joka on tunnettu vilkkaasta kaupallisesta toiminnastaan ja erinomaisista logistisista yhteyksistään.
Vapautuu
Heti
Kerros
1
Katutasossa
Lastauslaituri
Ota yhteyttä
MAP Tilat Oy
Mika Hermaala
mika.hermaala@maptilat.fi
Näytä puhelinnumero
040 192 1313
Energiakuja 3, 00180 Helsinki
Maarit Helander
maarit.helander@maptilat.fi
Näytä puhelinnumero
044 593 8661
Pyydä lisätietoa
