Vuokrataan varastotilat - Helsinki
Itälahdenkatu 23, Lauttasaari, 00210 Helsinki #10839043
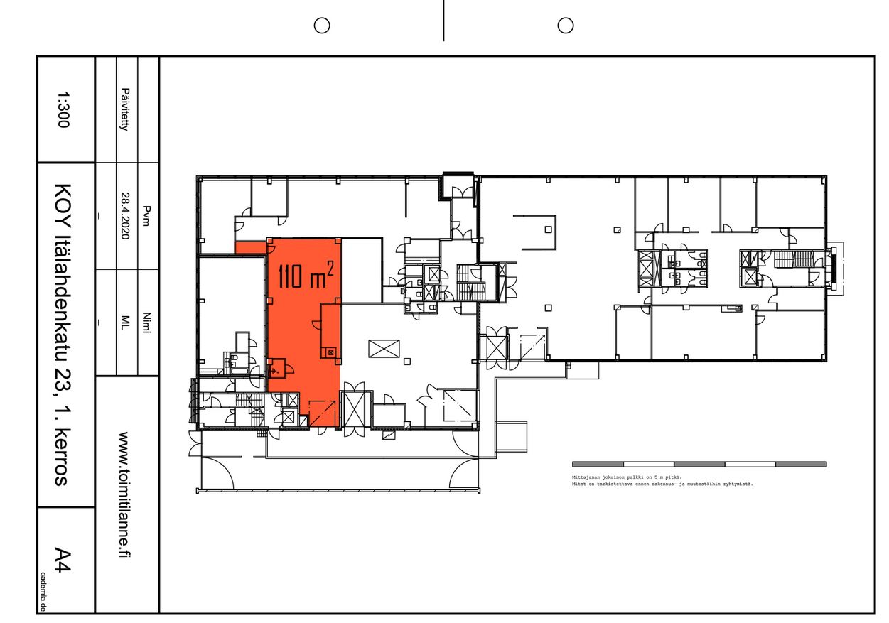
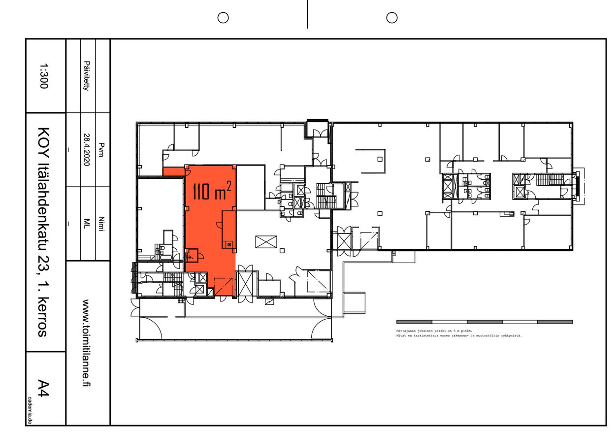
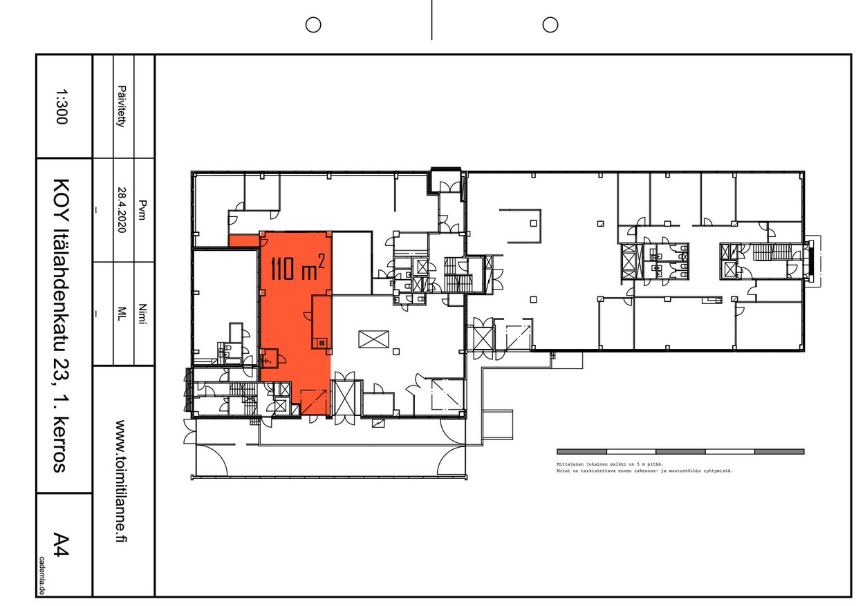
Vuokrataan katutason nosto-ovellinen varastotila 110 m2, johon on oma sisäänkäynti lastauslaiturilta (nosto-ovi 260 cm x 230 cm). Sisään voi kulkea myös A-rapun kautta Itälahdenkadun puolelta.
Helsingin Lauttasaaressa sijaitseva toimistorakennus on valmistunut 1970-luvulla. Sen kokonaispinta-ala on 7000 m2. Kohteessa on omia parkkipaikkoja ja lastauslaituri. Toimitilojen lähistöllä on useita lounasravintoloita.
Yhteydenotot 020 7290 710. Lisää kohteita www.premises.fi
Kohteella ei ole lain edellyttämää energiatodistusta tai energialuokka ei tiedossa.Kerros: katutaso
CRE PREMISES
Puh. Näytä puhelinnumero 020 7290 710
Vantaankoskentie 14
01670 VANTAA
