Vuokrataan varastotilat - Espoo
Koskelontie 13, Koskelo, 02920 Espoo #10838922
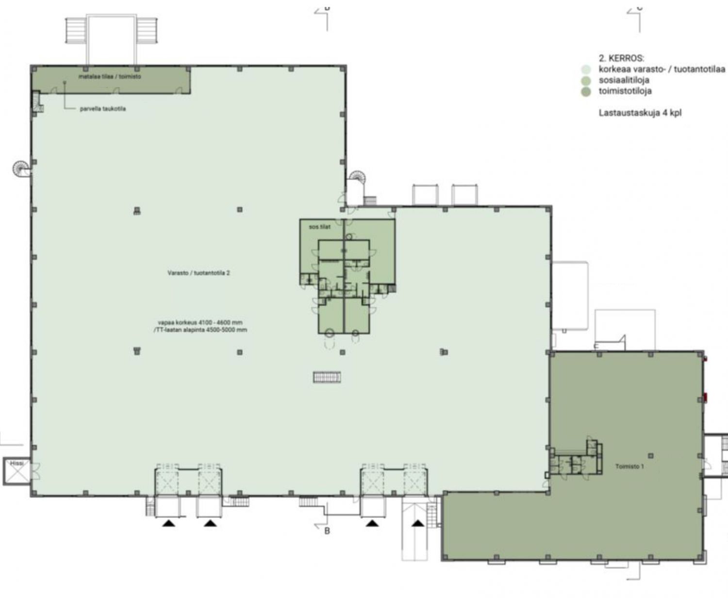
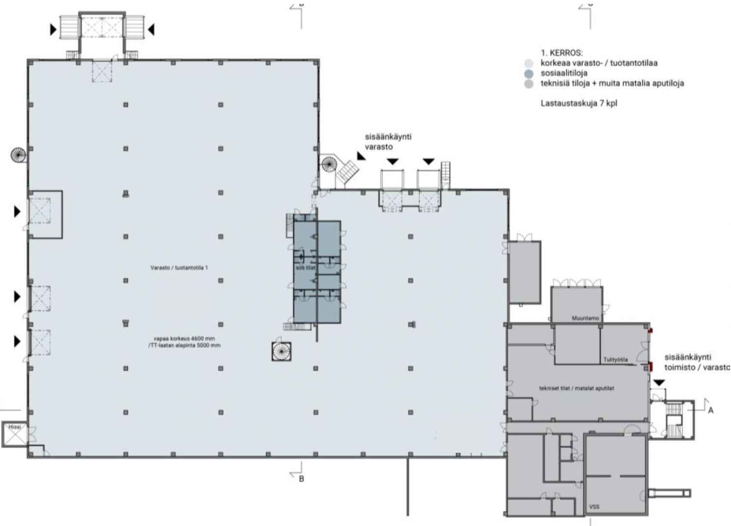
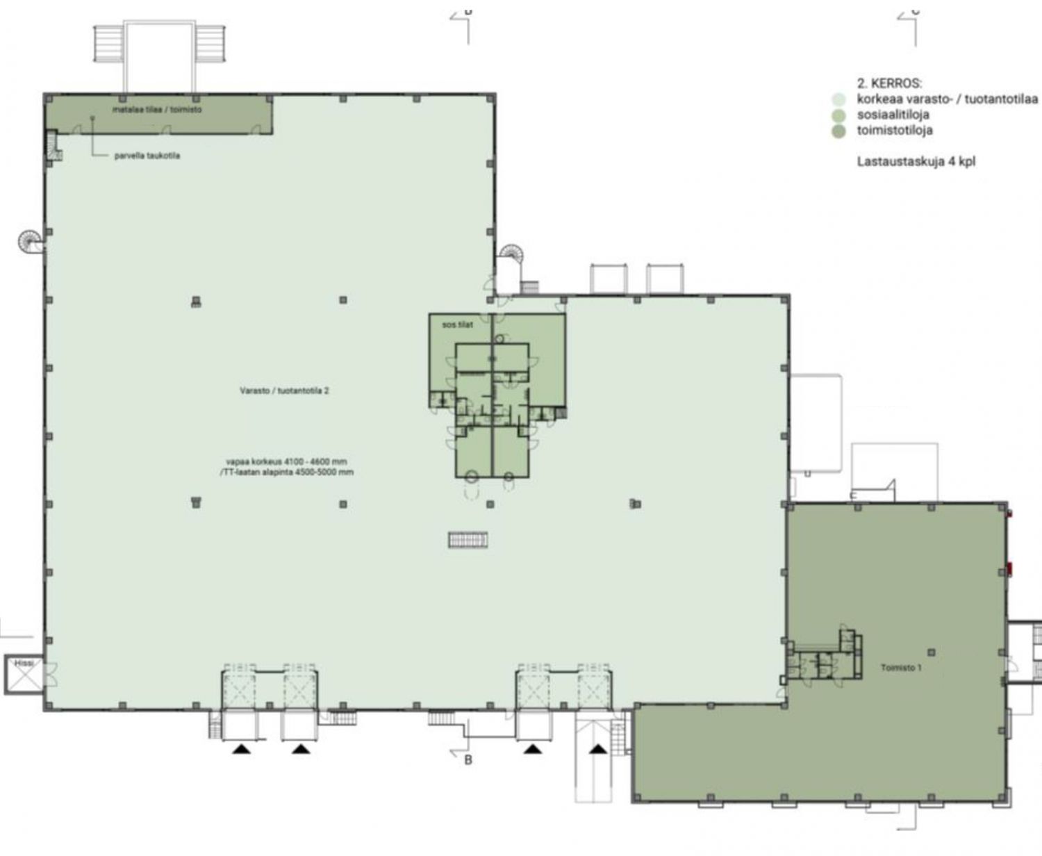
Koskelossa riittävästi varasto-tuotanto-toimistotilaa. Ensimmäisen ja toisen kerroksen vapaa korkeus noin 4,5 metriä. Lattiakantavuus 2000 kg/m2. 3 kpl maantason nosto-ovi, 1 kpl lastauramppi nosto-ovella ja 7 kpl lastaustaskuja. Varastotuotantotilaa 7100 m2 ja toimistotilaa 790 m2 .Lisäksi sosiaali - ja ravintolatilat. Piha-alueella noin 140 parkkipaikkaa.
Osoite
Koskelontie 13, 02920 Espoo
Tilatyyppi
Varastotilaa
9039 m2
Vapautuu
Kysy
Ota yhteyttä
Pyydä lisätietoa
