Vuokrataan toimistotilat - Helsinki
Salmisaarenaukio 1, Ruoholahti, 00180 Helsinki #10838871
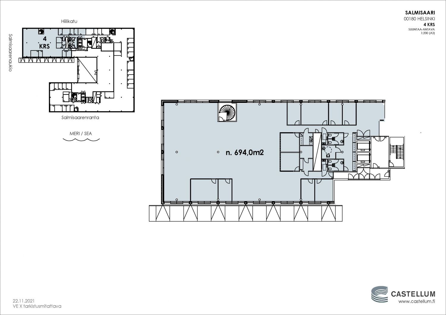
Neljännen kerroksen merinäköalatoimisto . Kiinteistö on edustava ja tyylikäs kattavilla business park - palveluilla. Ruoholahteen on hyvät kulkuyhteydet niin julkisilla kuin omalla autollakin.
Osoite
Salmisaarenaukio 1, 00180 Helsinki
Tilatyyppi
Toimistotilaa
658 m2
Vapautuu
Kysy
Kerros
4
Liitetiedostot
Ota yhteyttä
Pyydä lisätietoa
