Vuokrataan toimistotilat - Helsinki
Pursimiehenkatu 29-31, Punavuori, 00150 Helsinki #10838865
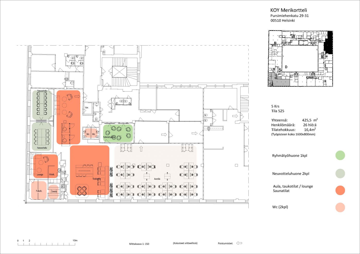
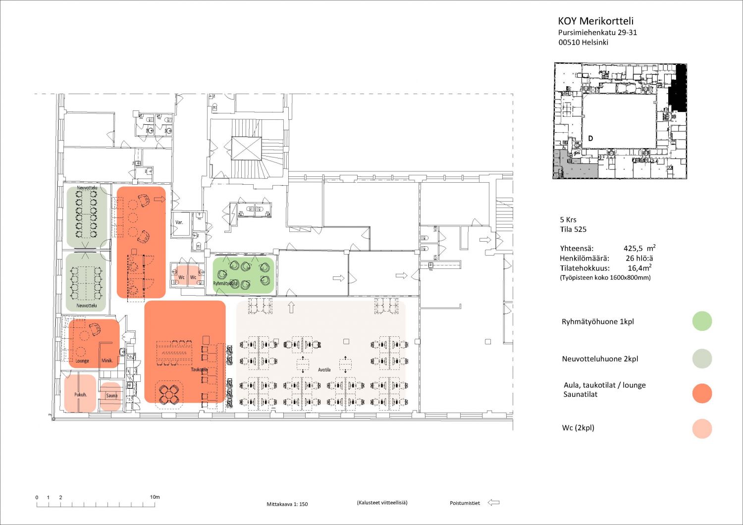
Pursimiehenkadulla vapautumassa toimistotilaa omalla saunalla viidennessä kerroksessa dynaamisessa Merikorttelissa, trendikkäiden kahviloiden ja ravintoloiden lähellä. Korkeaa, teollismaista , mutta modernia toimistotilaa. Kortteli käsittää 28 000 m2 toimitilaa yhteensä kuudessa maan päällisessä kerroksessa.. Tiloissa on suuret huonekorkeudet ja tilat ovat muuntojoustavat asiakkaiden tarpeiden ja toiveiden mukaisesti. Uniikkikohde Erinomaiset julkiset yhteydet. 15 minuutin kävelymatkan (2 km) päässä Rautatieasemalta. Raitiovaunu 1A:n päätepysäkki on juuri korttelin kohdalla. Lisäksi raitiovaunu 6 ja useita bussilinjoja pysähtyy lähellä.
Osoite
Pursimiehenkatu 29-31, 00150 Helsinki
Tilatyyppi
Toimistotilaa
425 m2
Vapautuu
Kysy
Ota yhteyttä
Pyydä lisätietoa
