Vuokrataan toimistotilat - Helsinki
Paasivuorenkatu 3, Hakaniemi, 00530 Helsinki #10838860
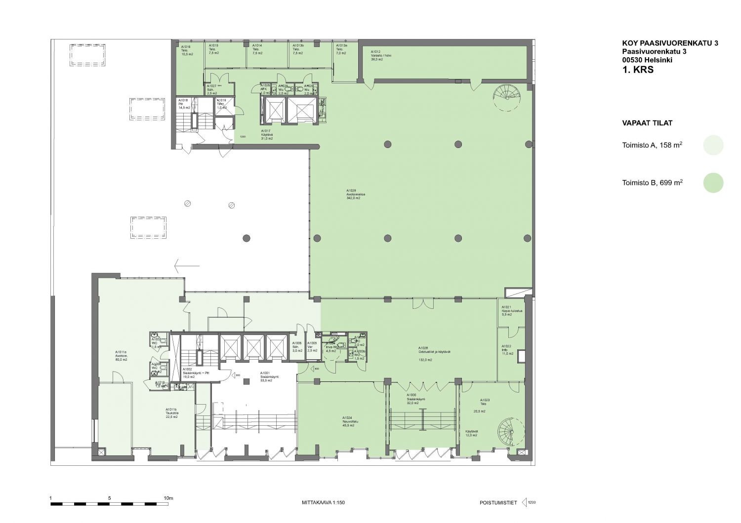
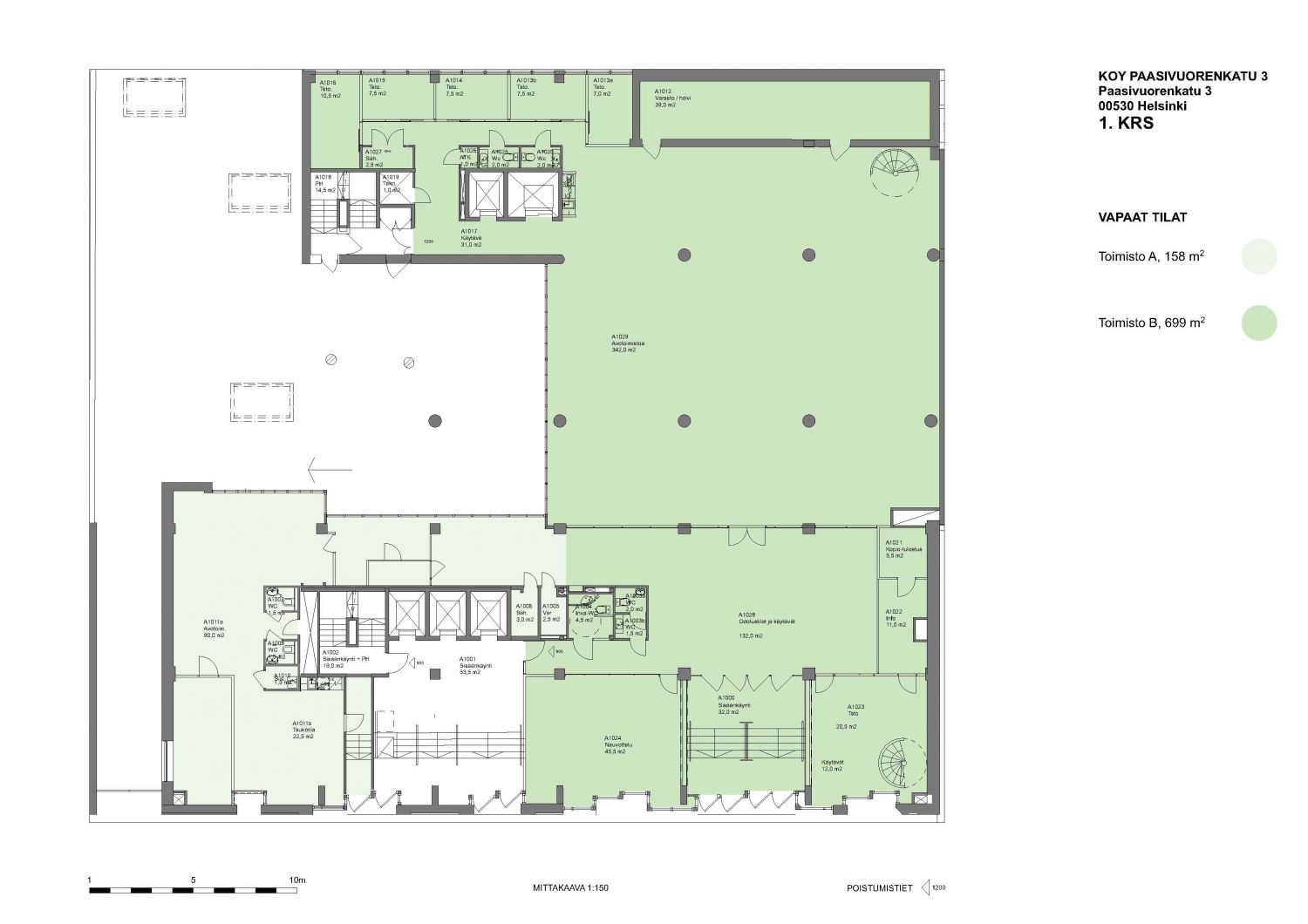
Vapaa ensimmäisen kerroksen toimitila, uniikki vanha pankkisali, korkea huonekorkeus. Kysy lisää tilan mahdollisuuksista.
Palvelut: aulapalvelut, lounasravintola / kahvila, parkkihalli, saunatilat, sähköauton latauspiste, wellness-palveluita. BREEAM Excellent -sertifikaatti.
Yhteydet : bussi – 50m, juna – 1,1 km, lentokenttä – 18 km, metro – 100m ja raitiovaunu – 100m.
Osoite
Paasivuorenkatu 3, 00530 Helsinki
Tilatyyppi
Toimistotilaa
815 m2
Vapautuu
Kysy
Ota yhteyttä
Pyydä lisätietoa
