Vuokrataan toimistotilat - Helsinki
Strömbergintie 1, Pitäjänmäki, 00380 Helsinki #10838849
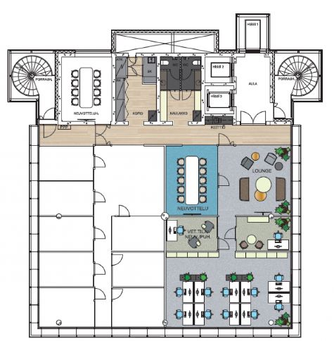
Vuokrattavana 4. kerroksen modernia ja valoisaa toimistotilaa.
Osoite
Strömbergintie 1, 00380 Helsinki
Tilatyyppi
Toimistotilaa
129 m2
Kiinteistö
Vuokrattavana 4. kerroksen modernia ja valoisaa toimistotilaa.
Sijainti
Pitäjänmäki, Helsinki
Pysäköinti
Talon pihalta / parkkihallista on vuokrattavissa pysäköintipaikkoja. Kadun varrella on lisäksi maksuttomia kiekkopysäköintipaikkoja.
Palvelut
-Aulapalvelut
-Lounasravintola
-Vuokrattavia neuvottelutiloja
-Kuntosali
-Lounasravintola
-Vuokrattavia neuvottelutiloja
-Kuntosali
Kulkuyhteydet
-Bussi
-Juna
-Oma auto
-Juna
-Oma auto
Vapautuu
Heti
Kerros
4
Energiatehokkuusluokka
Ei lain edellyttämää energiatodistusta
Näkyvällä paikalla
Hissi
Ota yhteyttä
REALIUM OY LKV
Tammasaarenkatu 1, 00180 Helsinki
Vaihde:
Näytä puhelinnumero
010 326 346
Tuomo Mäkelä
tuomo.makela@realium.fi
p.
Näytä puhelinnumero
044 050 1158
Joel Keto
joel.keto@realium.fi
p.
Näytä puhelinnumero
045 317 0330
KAIKKI TILAVAIHTOEHDOT KERRALLA!
SOITA - MEILAA JA TILAA NÄYTTÖ!
Ilmainen palvelu tilanhakijoille.
Kartoitamme parhaat tilavaihtoehdot.
Kaikki kohteet eivät ole netissä.
Pyydä lisätietoa
