Vuokrataan toimistotilat - Espoo
Niittyrinne 7, Suomenoja, 02270 Espoo #10838840
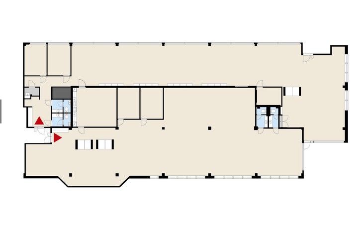
Tarjolla toisen kerroksen toimitila, joka voidaan räätälöidä erilaisten yritystoimintojen tarpeisiin. Jäähdytetyt tilat ovat helposti muokattavissa avo-, huone- tai monitilatoimistoksi. Tila on myös mahdollista jakaa useammalle käyttäjälle. Kiinteistö sijaitsee erinomaisella paikalla lähellä Länsiväylää ja on hyvin saavutettavissa julkisilla liikennevälineillä. Pihalla on runsaasti pysäköintitilaa.
Tiesitkö, että tilan hakijalle palvelumme on maksuton?
Ota yhteyttä ja kysy lisää!
Tiesitkö, että tilanhakijalle palvelumme on maksuton?
www.blanctoimitilat.fi
Joonas Nuutinen
Toimitila-asiantuntija
+358 40 754 5408
joonas.nuutinen@blanckiinteisto.com
Osoite
Niittyrinne 7, 02270 Espoo
Tilatyyppi
Toimistotilaa
684 m2
Vapautuu
Kysy
Ota yhteyttä
Pyydä lisätietoa
