Vuokrataan toimistotilat - Espoo
Piispanportti 10, 02200 Espoo #10838836
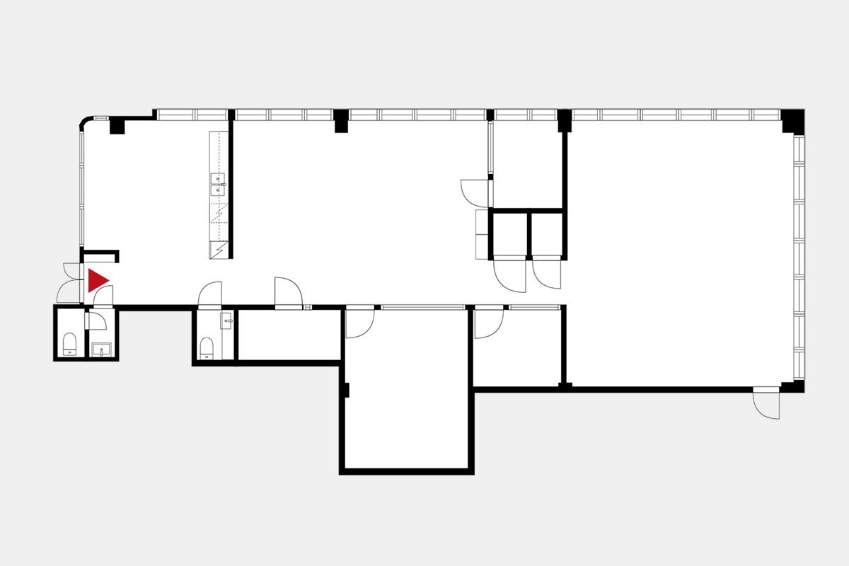
Vuokrataan tasokasta toimistotilaa rakennuksen viidennestä kerroksesta, tilassa erillisiä avotiloja, toimistohuoneita ja sosiaalitilaa, sekä keittiö.
Kokonaisuudessaan laadukkaassa rakennuksessa on tarjolla useampia eri tilavaihtoehtoja, joten mikäli et löytänyt sopivaa kokonaisuutta, ole yhteydessä niin räätälöidään yrityksesi tarpeisiin sopiva kokonaisuus.
Kiinteistössä lisäksi aulapalvelut, lounasravintola ja kokoustiloja.
Loistava sijainti Länsiväylän varrella Matinkylän ja Olarin välissä, metrolle ja kauppakeskukseen muutama sata metriä.
Autopaikkoja vuokrattavissa pihakannelta sekä viereisestä Q-parkista.
Ota yhteyttä ja kysy lisää!
Tiesitkö, että tilanhakijalle palvelumme on maksuton?
www.blanctoimitilat.fi
Joonas Nuutinen
Toimitila-asiantuntija
+358 40 754 5408
joonas.nuutinen@blanckiinteisto.com
