Vuokrataan liiketilat - Raisio
Kuloistentie 3, 21280 Raisio #10838822
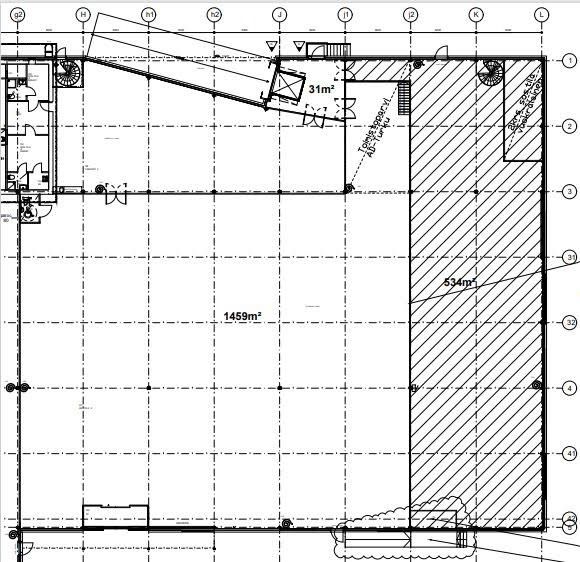
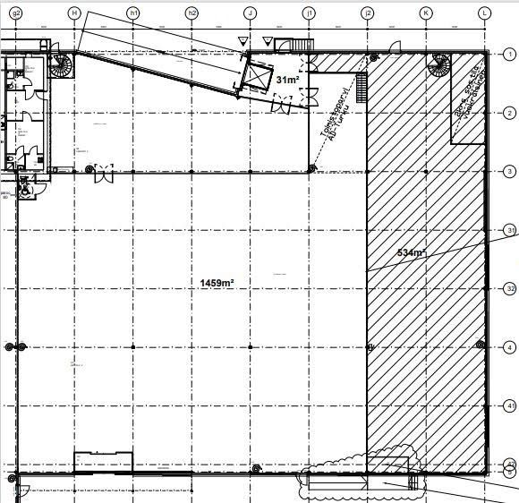
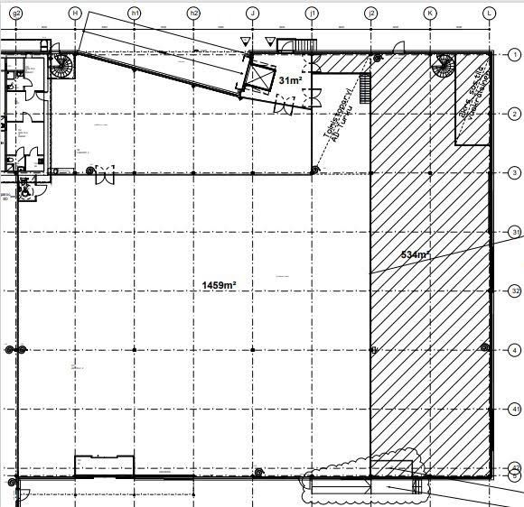
Vuokrataan n. 2024m² liiketila osoitteesta Kuloistentie 3, 21280 Raisio. Tila sijaitsee Kuloistentien ja Itäniityntien risteyksessä ja samassa kiinteistössä toimii naapurina Verkkokauppa.com sekä lähistöllä sijaitsee mm. Kauppakeskus Mylly, Bauhauss ja Hedin Automotive Turku. Pihan autopaikat ovat kiinteistön vapaassa käytössä niin henkilökunnalle kuin asiakkaillekin.
Tila koostuu myymälä- ja varastotiloista sekä alakerran toimisto-/neuvottelutilasta, jonka lisäksi toimistotilaa löytyy vielä parvelta. Niin henkilökunnalle kuin asiakkaillekin löytyy valmiiksi omat sosiaalitilat. Varastotiloissa on valmiina Kardex-varastoautomaatti, joka on mahdollista lunastaa omaksi ja suuri lastaustasku nosto-ovella tilan takaosassa helpottaa ulos- ja sisäänpäin menevää tavaraliikennettä. Myymälätilan vapaakorkeus on n. 4 metriä ja varastotiloissa n. 6 metriä. Tiloissa jäähdytys.
Vuokraan lisätään alv + kulut.
HUOM! Tilanhakijalle palvelumme on maksuton ja etsimme juuri teille sopivan tilan laajasta tilavalikoimastamme.
Ota yhteyttä ja kysy lisää!
www.blanctoimitilat.fi
Toni Niskanen
toni.niskanen@blanckiinteisto.com
+358 44 0758 171
