Vuokrataan liiketilat - Helsinki
John Stenbergin ranta 2, Siltasaari, 00530 Helsinki #10838791
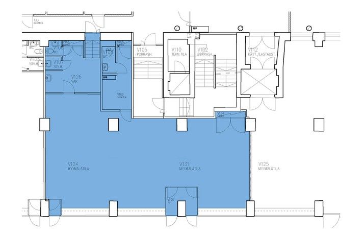
Vuokrattavana moderni katutason liiketila upeassa John S -toimistotalossa, joka sijaitsee erinomaisella paikalla Helsingin Siltasaaressa. Tämä kauniissa kiinteistössä sijaitseva liiketila tarjoaa monipuoliset mahdollisuudet liiketoiminnalle, mutta ei sovellu ravintolatoimintaan.
Kiinteistössä on kattavat palvelut, kuten aulapalvelu, kuntosali, lounasravintola, pukeutumis- ja pesutilat, pyörävarasto sekä vuokrattavia neuvottelutiloja. Lisäksi kiinteistön parkkihallissa on sähköauton latausmahdollisuus, mikä tekee tästä toimitilasta erityisen käyttäjäystävällisen ja modernin.
Ota yhteyttä ja kysy lisää!
Tiesitkö, että tilanhakijalle palvelumme on maksuton?
www.blanctoimitilat.fi
Joonas Nuutinen
Toimitila-asiantuntija
+358 40 754 5408
joonas.nuutinen@blanckiinteisto.com
